新耐震
EPIC TOWER SHIN YOKOHAMA
11階D室(神奈川県横浜市港北区新横浜)
新耐震
EPIC TOWER SHIN YOKOHAMA
11階D室(神奈川県横浜市港北区新横浜)
- 賃料(坪単価):
- 相談(@―)
- 共益費(坪単価)
- :
- 352,920円 (@4,000円)
- 預託金(保証金/敷金)
- :
- ―(12ヶ月)
- 面積
- :
- 88.23坪 (291.68m²)
- 所在地
- :
- 神奈川県横浜市港北区新横浜3-2-3
- 最寄駅
- :
-
新横浜駅まで徒歩6分
新横浜駅まで徒歩7分
菊名駅まで徒歩14分
菊名駅まで徒歩14分
物件情報
所在地・アクセス
- 物件名
- EPIC TOWER SHIN YOKOHAMA 11階D室
- 所在地
- 神奈川県横浜市港北区新横浜3-2-3
- 最寄駅
-
横浜市営ブルーライン 新横浜駅まで徒歩6分
JR横浜線 新横浜駅まで徒歩7分
東急東横線 菊名駅まで徒歩14分
JR横浜線 菊名駅まで徒歩14分
賃貸条件
- 賃料(坪単価)
- 相談(@―)
- 礼 金
- 無
- 共益費(坪単価)
- 352,920円(@4,000円)
- 面 積
- 88.23坪 (291.68m²)
- 賃料+共益費(坪単価)
- 相談 (@―)
- 償 却
- 無
- 預託金(保証金/敷金)
- ―(12ヶ月)
- 入居可能日
- 相談
- 更新料(再契約料)
- 無
- 契約期間
- 3年
物件概要
- 特 徴
- 構 造
- 鉄骨・鉄筋コンクリート造/新耐震
- 物件タイプ
- 事務所
- 規 模
- 地下3階付20階建
- 取引態様
- 一般媒介
- 竣 工
- 1993年7月
- 設 備
-
E V :11基、天井高:2600㎜、床仕様:OAフロア(H=150mm)、空調:セントラル、トイレ:共用 男女別 洋式
その他:エントランスセキュリティ、駐車場設備あり
- 備 考
-
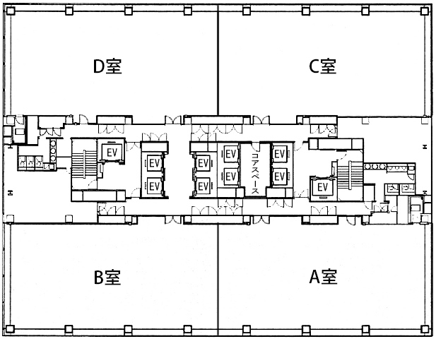
※契約面積や賃貸条件は、㎡を基準単位とします。 ■貸室面積には、コアスペースの面積(18.52㎡/5.60坪)が含まれます。 ■電気容量:40VA/㎡ ■セントラル空調コアタイム:平日8:30~18:00、土日祝休止 ■EV⇒低層・高層用:各4基(17人乗)、非常用:2基(24人乗)、駐車場用:1基(9人乗)
注) 上記の価格には、別途、消費税及び地方消費税が課されます。
消費税率が変更された場合には、以後、変更後の税率が課されることとなります。
物件情報更新日:2025-11-28
お気軽にお問合せください
現在募集中の区画
- 階数
- 面積
- 賃料
- 共益費
- 間取図
- HOME
- >
- エリアから探す
- >
- 横浜エリア
- >
- 横浜市港北区
- >
- EPIC TOWER SHIN YOKOHAMA
- >
- EPIC TOWER SHIN YOKOHAMA 11階D室
