松井ビル
1階(東京都千代田区有楽町)
松井ビル
1階(東京都千代田区有楽町)
- 賃料(坪単価):
- 2,100,000円(@―)
- 共益費(坪単価)
- :
- 相談 (@―)
- 預託金(保証金/敷金)
- :
- 相談()
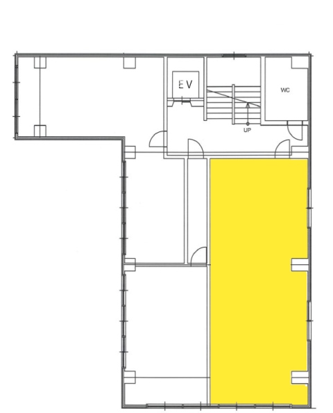
- 面積
- :
- 30.00坪 (99.17m²)
- 所在地
- :
- 東京都千代田区有楽町1-6
- 最寄駅
- :
-
日比谷駅まで徒歩1分
日比谷駅まで徒歩1分
有楽町駅まで徒歩3分
有楽町駅まで徒歩4分
有楽町駅まで徒歩4分
スタッフコメント
松井ビルは、有楽町と新橋を繋ぐ賑わいのあるガード街に所在する1964年築の店舗、事務所ビルです。 【日比谷駅】徒歩1分、【銀座駅】徒歩2分、【有楽町駅】徒歩3分と徒歩3分圏内に3駅7路線が利用可能な立地です。ランチタイム・夜の時間帯共に人通りが多いため、集客力・視認性共に高い物件となっています。また近隣にはコンビニや飲食店が数多くあり、便利な立地です。事務所、サービス店舗等ご相談可能となっております。新規開業のお客様にもオススメとなっております。
担当:川本 康生 支店:銀座店 更新日:2026年4月18日
物件情報
所在地・アクセス
- 物件名
- 松井ビル 1階
- 所在地
- 東京都千代田区有楽町1-6
- 最寄駅
-
東京メトロ千代田線 日比谷駅まで徒歩1分
東京メトロ日比谷線 日比谷駅まで徒歩1分
JR山手線 有楽町駅まで徒歩3分
JR山手線 有楽町駅まで徒歩4分
東京メトロ有楽町線 有楽町駅まで徒歩4分
賃貸条件
- 賃料(坪単価)
- 2,100,000円(@―)
- 礼 金
- 相談
- 共益費(坪単価)
- 相談(@―)
- 面 積
- 30.00坪 (99.17m²)
- 賃料+共益費(坪単価)
- 2,100,000円 (@―)
- 償 却
- 相談
- 預託金(保証金/敷金)
- 相談()
- 入居可能日
- 2026年7月中旬予定
- 更新料(再契約料)
- 相談
- 契約期間
- 年相談(定借)
物件概要
- 特 徴
- 構 造
- 鉄骨鉄筋コンクリート造
- 物件タイプ
- 店舗
- 規 模
- 地下1階付10階建
- 取引態様
- 一般媒介
- 竣 工
- 1964年3月
- 設 備
-
E V :1基、天井高:―㎜、床仕様:―、空調:―、トイレ:なし
- 備 考
-
■飲食店舗可能 ■貸主指定の保証会社と保証委託契約を締結していただきます。
注) 上記の価格には、別途、消費税及び地方消費税が課されます。
消費税率が変更された場合には、以後、変更後の税率が課されることとなります。
物件情報更新日:2026-04-17
お気軽にお問合せください
