新耐震
後楽園SAJビル
8階(東京都文京区本郷)
新耐震
後楽園SAJビル
8階(東京都文京区本郷)
- 賃料(坪単価):
- 相談(@―)
- 共益費(坪単価)
- :
- 101,370円 (@3,000円)
- 預託金(保証金/敷金)
- :
- ―(12ヶ月)
- 面積
- :
- 33.79坪 (111.73m²)
- 所在地
- :
- 東京都文京区本郷1-34-3
- 最寄駅
- :
-
後楽園駅まで徒歩2分
春日駅まで徒歩3分
後楽園駅まで徒歩3分
水道橋駅まで徒歩6分
水道橋駅まで徒歩9分
物件情報
所在地・アクセス
- 物件名
- 後楽園SAJビル 8階
- 所在地
- 東京都文京区本郷1-34-3
- 最寄駅
-
東京メトロ南北線 後楽園駅まで徒歩2分
都営三田線 春日駅まで徒歩3分
東京メトロ丸ノ内線 後楽園駅まで徒歩3分
都営三田線 水道橋駅まで徒歩6分
JR中央線 水道橋駅まで徒歩9分
賃貸条件
- 賃料(坪単価)
- 相談(@―)
- 礼 金
- 無
- 共益費(坪単価)
- 101,370円(@3,000円)
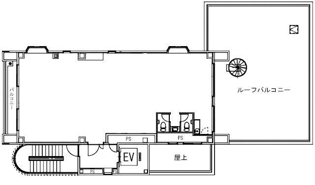
- 面 積
- 33.79坪 (111.73m²)
- 賃料+共益費(坪単価)
- 相談 (@―)
- 償 却
- 無
- 預託金(保証金/敷金)
- ―(12ヶ月)
- 入居可能日
- 2026年7月上旬予定
- 更新料(再契約料)
- 無
- 契約期間
- 2年
物件概要
- 特 徴
- 構 造
- 鉄骨造/新耐震
- 物件タイプ
- 事務所
- 規 模
- 地下1階付9階建
- 取引態様
- 一般媒介
- 竣 工
- 1992年10月
- 設 備
-
E V :1基(11人乗)、天井高:2400㎜、床仕様:OAフロア(H=50mm)、空調:個別空調、トイレ:専用 男女別 洋式
その他:機械警備
- 備 考
-
■貸室面積には、トイレ・給湯室等の面積が含まれます。 ■床荷重:300㎏/㎡ ■電気容量:主幹100A ■エントランス開放時間:平日8:00~20:00 ※左記時間帯以外はセキュリティカード利用にて入退館可能
注) 上記の価格には、別途、消費税及び地方消費税が課されます。
消費税率が変更された場合には、以後、変更後の税率が課されることとなります。
物件情報更新日:2026-03-05
お気軽にお問合せください
