当社貸主物件
新耐震
日刊スポーツビル
202号室(東京都中央区築地)
当社貸主物件
新耐震
日刊スポーツビル
202号室(東京都中央区築地)
- 賃料(坪単価):
- 511,480円(@19,000円)
- 共益費(坪単価)
- :
- 賃料に含む (@―)
- 預託金(保証金/敷金)
- :
- 2,045,920円(4ヶ月)
- 面積
- :
- 26.92坪 (88.98m²)
- 所在地
- :
- 東京都中央区築地3-5-10
- 最寄駅
- :
-
築地駅まで徒歩2分
新富町駅まで徒歩4分
八丁堀駅まで徒歩11分
東銀座駅まで徒歩12分
物件情報
所在地・アクセス
- 物件名
- 日刊スポーツビル 202号室
- 所在地
- 東京都中央区築地3-5-10
- 最寄駅
-
東京メトロ日比谷線 築地駅まで徒歩2分
東京メトロ有楽町線 新富町駅まで徒歩4分
JR京葉線 八丁堀駅まで徒歩11分
都営浅草線 東銀座駅まで徒歩12分
賃貸条件
- 賃料(坪単価)
- 511,480円(@19,000円)
- 礼 金
- 無
- 共益費(坪単価)
- 賃料に含む(@―)
- 面 積
- 26.92坪 (88.98m²)
- 賃料+共益費(坪単価)
- 511,480円 (@19,000円)
- 償 却
- 無
- 預託金(保証金/敷金)
- 2,045,920円(4ヶ月)
- 入居可能日
- 2026年5月上旬予定
- 更新料(再契約料)
- 新賃料の1ヶ月分
- 契約期間
- 2年(定借)
物件概要
- 特 徴
- 構 造
- 鉄骨鉄筋コンクリート・鉄筋コンクリート造/新耐震
- 物件タイプ
- 事務所
- 規 模
- 地下3階付7階建
- 取引態様
- 貸主
- 竣 工
- 1986年12月
- 設 備
-
E V :3基、天井高:2800㎜、床仕様:OAフロア、空調:個別空調、トイレ:共用 男女別 洋式
- 備 考
-
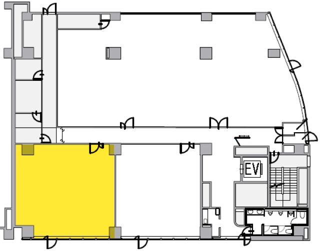
■共用部にテレカンブースあり(2台) ■水道料:月額7,500円、電気料(動力):面積按分 ■解約予告:6ヶ月前 ■SFビルサポート株式会社と保証委託契約を締結していただきます。 ※与信状況によって預託金額が変動する場合がございます。 ※図面着色部分が募集区画となりますが、契約面積と相違する可能性があることを予めご了承ください。
注) 上記の価格には、別途、消費税及び地方消費税が課されます。
消費税率が変更された場合には、以後、変更後の税率が課されることとなります。
物件情報更新日:2026-03-26
お気軽にお問合せください
現在募集中の区画
- 階数
- 面積
- 賃料
- 共益費
- 間取図
- HOME
- >
- エリアから探す
- >
- 中央区
- >
- 築地・新富・八丁堀・入船
- >
- 日刊スポーツビル
- >
- 日刊スポーツビル 202号室
