エクセレンス池袋
304号室(東京都豊島区南池袋)
エクセレンス池袋
304号室(東京都豊島区南池袋)
- 賃料(坪単価):
- 345,455円(@―)
- 共益費(坪単価)
- :
- 16,691円 (@―)
- 預託金(保証金/敷金)
- :
- 760,000円(―)
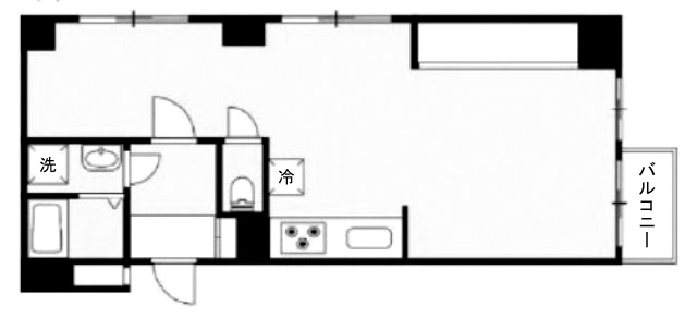
- 面積
- :
- 16.91坪 (55.92m²)
- 所在地
- :
- 東京都豊島区南池袋2-9-8
- 最寄駅
- :
-
池袋駅まで徒歩5分
池袋駅まで徒歩5分
東池袋駅まで徒歩5分
池袋駅まで徒歩7分
池袋駅まで徒歩7分
物件情報
所在地・アクセス
- 物件名
- エクセレンス池袋 304号室
- 所在地
- 東京都豊島区南池袋2-9-8
- 最寄駅
-
東京メトロ有楽町線 池袋駅まで徒歩5分
東京メトロ丸ノ内線 池袋駅まで徒歩5分
東京メトロ有楽町線 東池袋駅まで徒歩5分
JR山手線 池袋駅まで徒歩7分
東京メトロ副都心線 池袋駅まで徒歩7分
賃貸条件
- 賃料(坪単価)
- 345,455円(@―)
- 礼 金
- 賃料の1ヶ月分
- 共益費(坪単価)
- 16,691円(@―)
- 面 積
- 16.91坪 (55.92m²)
- 賃料+共益費(坪単価)
- 362,146円 (@―)
- 償 却
- 無
- 預託金(保証金/敷金)
- 760,000円(―)
- 入居可能日
- 即日
- 更新料(再契約料)
- 新賃料の1ヶ月分
- 契約期間
- 2年
物件概要
- 特 徴
-
- 構 造
- 鉄骨鉄筋コンクリート造
- 物件タイプ
- 事務所
- 規 模
- 9階建
- 取引態様
- 一般媒介
- 竣 工
- 1980年3月
- 設 備
-
E V :あり、天井高:―㎜、床仕様:―、空調:個別空調、トイレ:専用 男女共用 洋式
その他:エントランスセキュリティ
- 備 考
-
■引渡し:現況有姿(デスク・椅子・冷蔵庫あり) ■更新事務手数料:新賃料の0.25ヶ月分 ■室内抗菌処理費:15,000円 ■鍵交換代を、別途ご負担いただきます。 ■貸主指定の24時間サポートサービス(くらしーど24)にご加入いただきます。※契約時入会金:15,000円/2年 ■貸主指定の借家賠償付火災保険にご加入いただきます。 ■貸主指定の保証会社と保証委託契約を締結していただきます。
注) 上記の価格には、別途、消費税及び地方消費税が課されます。
消費税率が変更された場合には、以後、変更後の税率が課されることとなります。
物件情報更新日:2026-04-15
お気軽にお問合せください
