当社管理物件
新耐震
日本橋BSビル
3階(東京都中央区日本橋富沢町)
当社管理物件
新耐震
日本橋BSビル
3階(東京都中央区日本橋富沢町)
- 賃料(坪単価):
- 1,091,200円(@16,000円)
- 共益費(坪単価)
- :
- 賃料に含む (@―)
- 預託金(保証金/敷金)
- :
- 8,729,600円(8ヶ月)
- 面積
- :
- 68.20坪 (225.45m²)
- 所在地
- :
- 東京都中央区日本橋富沢町10-14
- 最寄駅
- :
-
馬喰横山駅まで徒歩4分
人形町駅まで徒歩5分
東日本橋駅まで徒歩5分
人形町駅まで徒歩6分
小伝馬町駅まで徒歩7分
スタッフコメント
都営新宿線【馬喰横山駅】徒歩4分、都営浅草線【人形町駅】徒歩5分、東京メトロ日比谷線【小伝馬町駅】徒歩7分!周辺にはランチ処も多く、閑静で働きやすい落ち着いたオフィス環境です。当物件は、2020年12月にエントランス・EVホールのリニューアル工事も実施し、清潔感のあるオフィスへと生まれ変わっております。貸室内は3面採光の明るい空間!L字形状のため、バルコニー側に会議室やリフレッシュスペースを設置することで執務室との動線もしっかりと分けることが出来ます。そして、建物内に自動販売機の設置の他、機械式の駐車場がございますので、ご利用希望の方はお気軽にお問い合わせ下さい。(※満車の場合もございます。)是非一度ご内見ください!
担当:宮内 柊哉 支店:小伝馬町店 更新日:2025年12月4日
物件情報
所在地・アクセス
- 物件名
- 日本橋BSビル 3階
- 所在地
- 東京都中央区日本橋富沢町10-14
- 最寄駅
-
都営新宿線 馬喰横山駅まで徒歩4分
都営浅草線 人形町駅まで徒歩5分
都営浅草線 東日本橋駅まで徒歩5分
東京メトロ日比谷線 人形町駅まで徒歩6分
東京メトロ日比谷線 小伝馬町駅まで徒歩7分
賃貸条件
- 賃料(坪単価)
- 1,091,200円(@16,000円)
- 礼 金
- 無
- 共益費(坪単価)
- 賃料に含む(@―)
- 面 積
- 68.20坪 (225.45m²)
- 賃料+共益費(坪単価)
- 1,091,200円 (@16,000円)
- 償 却
- 無
- 預託金(保証金/敷金)
- 8,729,600円(8ヶ月)
- 入居可能日
- 2026年3月上旬予定
- 更新料(再契約料)
- 無
- 契約期間
- 2年
物件概要
- 特 徴
- 構 造
- 鉄骨造/新耐震
- 物件タイプ
- 事務所
- 規 模
- 地下1階付8階建
- 取引態様
- 一般媒介
- 竣 工
- 1994年3月
- 設 備
-
E V :1基、天井高:―㎜、床仕様:OAフロア、空調:個別空調、トイレ:専用 男女別 洋式
その他:機械警備、駐車場設備あり
- 備 考
-
■2020年12月、エントランス・EVホール大規模リニューアル工事済 ■貸室面積には、EVホール・トイレ・給湯室等の面積が含まれます。 ■貸主指定の保証会社(日商保)と保証委託契約を締結していただきます。※ご利用いただく場合、敷金なしの相談可能。
注) 上記の価格には、別途、消費税及び地方消費税が課されます。
消費税率が変更された場合には、以後、変更後の税率が課されることとなります。
物件情報更新日:2025-12-03
お気軽にお問合せください
現在募集中の区画
- 階数
- 面積
- 賃料
- 共益費
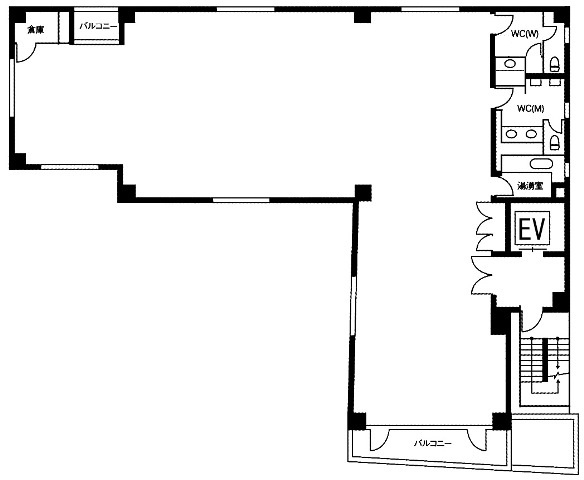
- 間取図
