当社貸主物件
セットアップオフィス
新耐震
プライム東日本橋一丁目ビル
2階(東京都中央区東日本橋)
当社貸主物件
セットアップオフィス
新耐震
プライム東日本橋一丁目ビル
2階(東京都中央区東日本橋)
- 賃料(坪単価):
- 1,654,320円(@24,000円)
- 共益費(坪単価)
- :
- 賃料に含む (@―)
- 預託金(保証金/敷金)
- :
- ―(相談)
- 面積
- :
- 68.93坪 (227.90m²)
- 所在地
- :
- 東京都中央区東日本橋1-1-4
- 最寄駅
- :
-
東日本橋駅まで徒歩2分
馬喰横山駅まで徒歩2分
馬喰町駅まで徒歩2分
浜町駅まで徒歩5分
人形町駅まで徒歩8分
スタッフコメント
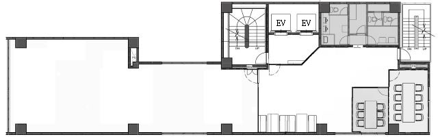
当ビルは、大通り沿いの視認性の良い場所に所在しています。近隣には、コンビニや郵便局、スーパーなど、近くにあると有難い施設が揃っております。ビルの1階エントランスは、白を基調とした明るいリニューアルを施しています。(2021年12月、エントランス・EVホールリニューアル工事実施済)エレベーターが2基あるのも嬉しいポイント。貸室内も、水回りを含めリニューアル工事を実施しています。(2022年12月、セットアップ化工事実施済)木目を用いたぬくもりのあるデザインが特徴です。室内には、受付・会議室の間仕切りをあらかじめ設置。会議室は、8名掛けと6名掛けの2つを準備しているので、人数の多い打ち合わせがある企業様にもおすすめです。是非一度現地をご覧くださいませ。
担当:加茂 さおり 支店:小伝馬町店 更新日:2025年11月1日
物件情報
所在地・アクセス
- 物件名
- プライム東日本橋一丁目ビル 2階
- 所在地
- 東京都中央区東日本橋1-1-4
- 最寄駅
-
都営浅草線 東日本橋駅まで徒歩2分
都営新宿線 馬喰横山駅まで徒歩2分
JR総武線快速 馬喰町駅まで徒歩2分
都営新宿線 浜町駅まで徒歩5分
東京メトロ日比谷線 人形町駅まで徒歩8分
賃貸条件
- 賃料(坪単価)
- 1,654,320円(@24,000円)
- 礼 金
- 無
- 共益費(坪単価)
- 賃料に含む(@―)
- 面 積
- 68.93坪 (227.90m²)
- 賃料+共益費(坪単価)
- 1,654,320円 (@24,000円)
- 償 却
- 無
- 預託金(保証金/敷金)
- ―(相談)
- 入居可能日
- 2026年1月上旬予定
- 更新料(再契約料)
- 無
- 契約期間
- 年相談(定借)
物件概要
- 特 徴
- 構 造
- SRC造・RC造/新耐震
- 物件タイプ
- 事務所
- 規 模
- 地下1階付9階建
- 取引態様
- 貸主
- 竣 工
- 1987年8月
- 設 備
-
E V :2基、天井高:―㎜、床仕様:―、空調:個別空調、トイレ:専用 男女別 洋式
その他:機械警備、駐車場設備あり
- 備 考
-
■再契約相談可能 ■中途解約相談可(解約予告:6ヶ月前) ■2021年12月、エントランス・EVホールリニューアル工事実施済 ■2022年11月、貸室内リニューアル工事実施済 ■貸室面積には、トイレ・給湯室等の面積が含まれます。 ■貸主指定の保証会社と保証委託契約を締結していただくことで敷金無で入居することができます。
注) 上記の価格には、別途、消費税及び地方消費税が課されます。
消費税率が変更された場合には、以後、変更後の税率が課されることとなります。
物件情報更新日:2025-10-31
お気軽にお問合せください
