当社貸主物件
セットアップオフィス
新耐震
Biz Feel AKIHABARA (旧:峯岸ビル)
2階(東京都千代田区神田岩本町)
当社貸主物件
セットアップオフィス
新耐震
Biz Feel AKIHABARA (旧:峯岸ビル)
2階(東京都千代田区神田岩本町)
- 賃料(坪単価):
- 1,000,000円(@―)
- 共益費(坪単価)
- :
- 賃料に含む (@―)
- 預託金(保証金/敷金)
- :
- ー(無)
- 面積
- :
- 28.61坪 (94.608m²)
- 所在地
- :
- 東京都千代田区神田岩本町1
- 最寄駅
- :
-
岩本町駅まで徒歩2分
秋葉原駅まで徒歩5分
秋葉原駅まで徒歩5分
秋葉原駅まで徒歩5分
神田駅まで徒歩10分
スタッフコメント
電気街やオタク文化など多様な価値観が交差し、ビジネスのイノベーションが刺激される街に什器付きのセットアップオフィスが誕生します!路線はJR山手線・中央線・総武線・京浜東北線【秋葉原駅】徒歩5分、都営新宿線【岩本町駅】徒歩2分、東京メトロ日比谷線【秋葉原駅】徒歩2分の3駅6路線が利用可能です!カフェスタイルの内装を取り入れており、従業員の皆様がリラックスできる貸室です。物件は秋葉原駅から神田川を渡った立地のため、秋葉原駅前の喧騒から離れた落ち着いた環境で執務いただけます!また、敷金なし(保証会社加入必須)・原状回復義務なしプランを採用しており、初期費用を抑えることが出来るため、スタートアップ企業にもおススメの物件です!
担当:髙野 翔 支店:神田店 更新日:2026年4月10日
物件情報
所在地・アクセス
- 物件名
- Biz Feel AKIHABARA (旧:峯岸ビル) 2階
- 所在地
- 東京都千代田区神田岩本町1
- 最寄駅
-
都営新宿線 岩本町駅まで徒歩2分
JR山手線 秋葉原駅まで徒歩5分
JR中央線 秋葉原駅まで徒歩5分
東京メトロ日比谷線 秋葉原駅まで徒歩5分
東京メトロ銀座線 神田駅まで徒歩10分
賃貸条件
- 賃料(坪単価)
- 1,000,000円(@―)
- 礼 金
- 無
- 共益費(坪単価)
- 賃料に含む(@―)
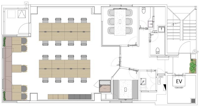
- 面 積
- 28.61坪 (94.608m²)
- 賃料+共益費(坪単価)
- 1,000,000円 (@―)
- 償 却
- 無
- 預託金(保証金/敷金)
- ー(無)
- 入居可能日
- 2026年5月予定
- 更新料(再契約料)
- 無
- 契約期間
- 2年
物件概要
- 特 徴
- 構 造
- 鉄骨造/新耐震
- 物件タイプ
- 事務所
- 規 模
- 9階建
- 取引態様
- 貸主
- 竣 工
- 1989年9月
- 設 備
-
E V :1基(6人乗)、天井高:―㎜、床仕様:OAフロア、空調:個別空調、トイレ:専用 男女別 洋式
その他:機械警備、EV不停止機能付
- 備 考
-
※リニューアル工事中のため、契約面積や設備等変更となる可能性がございますので、予めご了承ください。 ■契約開始より12ヶ月間解約不可(12ヶ月間以内解約の場合、違約金が発生いたします) ■2026年2月、エントランス・共用部等リニューアル工事完了 ■2026年5月、内装造作付きフルセットアップ工事完了予定 ■原状回復義務なし(現状変更した場合や破損等を除く) ■クリーニング費用をご負担いただきます。(契約時) ■貸主指定の清掃会社と貸室内の清掃契約を締結していただきます。 ■インターネット回線(Wi-Fi含む)引込予定 ■SFビルサポート株式会社と保証委託契約を締結していただきます。※与信状況によって敷金の預託をお願いする場合がございます。
注) 上記の価格には、別途、消費税及び地方消費税が課されます。
消費税率が変更された場合には、以後、変更後の税率が課されることとなります。
物件情報更新日:2026-04-09
お気軽にお問合せください
現在募集中の区画
- 階数
- 面積
- 賃料
- 共益費
- 間取図
- HOME
- >
- エリアから探す
- >
- 千代田区
- >
- 御茶ノ水・神田・秋葉原
- >
- Biz Feel AKIHABARA (旧:峯岸ビル)
- >
- Biz Feel AKIHABARA (旧:峯岸ビル) 2階
