新耐震
井筒西麻布ビル
4階(東京都港区西麻布)
新耐震
井筒西麻布ビル
4階(東京都港区西麻布)
- 賃料(坪単価):
- 493,850円(@17,000円)
- 共益費(坪単価)
- :
- 無 (@―)
- 預託金(保証金/敷金)
- :
- 4,938,500円(10ヶ月)
- 面積
- :
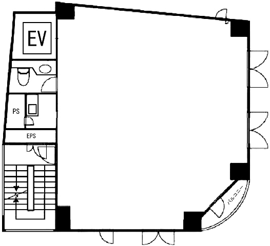
- 29.05坪 (96.03m²)
- 所在地
- :
- 東京都港区西麻布4-3-3
- 最寄駅
- :
-
広尾駅まで徒歩7分
広尾駅まで徒歩7分
乃木坂駅まで徒歩13分
六本木駅まで徒歩14分
麻布十番駅まで徒歩15分
物件情報
所在地・アクセス
- 物件名
- 井筒西麻布ビル 4階
- 所在地
- 東京都港区西麻布4-3-3
- 最寄駅
-
東京メトロ日比谷線 広尾駅まで徒歩7分
東京メトロ日比谷線 広尾駅まで徒歩7分
東京メトロ千代田線 乃木坂駅まで徒歩13分
都営大江戸線 六本木駅まで徒歩14分
都営大江戸線 麻布十番駅まで徒歩15分
賃貸条件
- 賃料(坪単価)
- 493,850円(@17,000円)
- 礼 金
- 無
- 共益費(坪単価)
- 無(@―)
- 面 積
- 29.05坪 (96.03m²)
- 賃料+共益費(坪単価)
- 493,850円 (@17,000円)
- 償 却
- 賃料の1ヶ月分
- 預託金(保証金/敷金)
- 4,938,500円(10ヶ月)
- 入居可能日
- 即日
- 更新料(再契約料)
- 無
- 契約期間
- 5年(定借)
物件概要
- 特 徴
-
- 構 造
- 鉄筋コンクリート造/新耐震
- 物件タイプ
- 事務所
- 規 模
- 6階建
- 取引態様
- 一般媒介
- 竣 工
- 2005年12月
- 設 備
-
E V :1基、天井高:―㎜、床仕様:―、空調:個別空調、トイレ:専用 男女共用 洋式
- 備 考
-
注) 上記の価格には、別途、消費税及び地方消費税が課されます。
消費税率が変更された場合には、以後、変更後の税率が課されることとなります。
物件情報更新日:2025-10-09
お気軽にお問合せください
