Powered by
ホーム 台東・文京・豊島区の居抜き・セットアップオフィスを探す 【敷金0・原状回復不要】大塚駅徒歩5分!家具・Wi-Fi完備の小規模向けフルセットアップオフィス

【敷金0・原状回復不要】大塚駅徒歩5分!家具・Wi-Fi完備の小規模向けフルセットアップオフィス

募集終了
当社貸主物件
仲介手数料無料
エリア:台東・文京・豊島区
広さ:〜30坪
席数:10席未満
公開日:2025.10.01

物件のご紹介

大塚駅近く、人気のフルセットアップオフィス『NOVEL WORK Otsuka』をご紹介します。本物件は、JR山手線大塚駅から徒歩5分、東京メトロ丸ノ内線新大塚駅から徒歩4分と、都心へのアクセスにも便利な主要路線を利用し易い立地です。

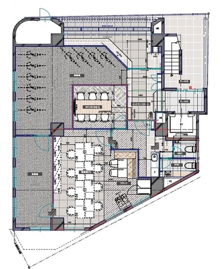
約16坪のコンパクトな室内には、最大8名の小規模スタートアップに最適なレイアウトが組まれています。コンパクトながら6名用会議室1室とテレカンブース1室を完備しており、各スペースの家具やWi-Fiもあらかじめ備わっているため、初めてのオフィス利用でも負担の少ない、スムーズな移転を実現可能です。

特筆すべきはそのコスト条件面で、高額になりがちな敷金が不要であることに加え、退去時の原状回復義務もありません。初期費用と退去時コストを最大限削減できるため、成長フェーズのスタートアップ企業様にも自信を持っておすすめできます。

2026年工事完了予定で人気が予想されますので、資料請求についてはお早めにお問い合わせください。

おすすめポイント

  1. 当社貸主物件のため【仲介手数料不要】
  2. 敷金0ヶ月、原状回復不要で、移転コストを大幅削減
  3. 内装・家具、Wi-Fiまで完備のフルセットアップオフィス
菅野 勇人

営業担当者

菅野 勇人

宅地建物取引士

セットアップオフィスから一般的なオフィスまで、多種多様なオフィスビルの魅力や特徴を熟知したオフィス物件マニア。

スタートアップ企業の移転支援経験が多く、そこで得た知見を活かし、お客様の理想のオフィス探しを全力でサポートいたします。

この物件を問い合わせる
物件概要
物件番号 fs-3413
物件名 NOVEL WORK Otsuka
所在地 東京都豊島区南大塚3-11-9
最寄り駅 東京メトロ丸ノ内線
新大塚駅 徒歩4分

JR 大塚駅
徒歩5分

都電荒川線
大塚駅前駅 徒歩5分
階数 1階
面積 16.65坪(55.09㎡)
推奨席数 8席
物件タイプ フルセットアップオフィス
会議室数 6名掛け会議室×1室
テレカンブース数 1室
竣工年 1988年12月
特徴・設備 # 敷金無し # 原状回復免除 # 家具・什器付き # テレカンブース付き # 会議室付き # Wi-Fi完備 # 男女別トイレ # 2路線利用可 # 最寄り駅から徒歩5分以内
募集条件
月額賃料@坪単価 相談
敷金 / 保証金 最大0ヶ月
償却
礼金
更新料 / 再契約料
入居可能日 相談
契約期間 2年(12ヶ月間解約不可)
原状回復有無
保証契約

※表示価格は税抜き価格です。

この物件を問い合わせる

物件のお問い合わせフォーム

オフィス物件を探す

キーワード
カテゴリー

Get In Touch!!

希望条件が決まっていなくても、オフィス移転のプロが要件定義からご一緒させていただきます。まずはお気軽にご相談くださいませ。

お電話でのお問い合わせはこちら

03-6858-3030

平日
9:00~18:00