
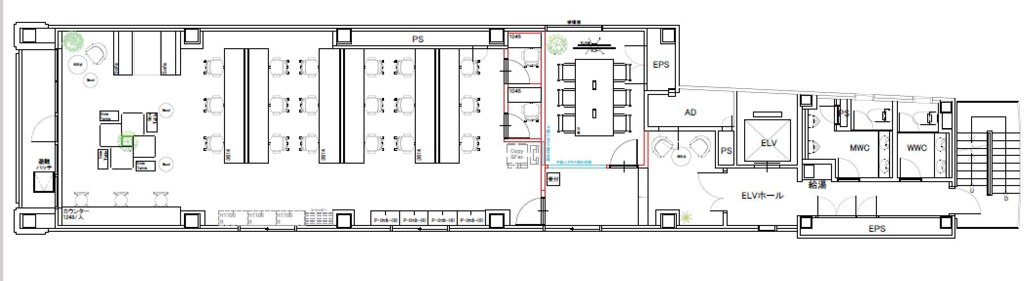
虎ノ門エリアでオフィスをご検討中のお客様へおすすめしたいのが当該セットアップオフィスです。虎ノ門駅・内幸町駅まで徒歩2分、霞ヶ関駅も徒歩6分と、都心の主要駅へのアクセスに便利な立地です。一部什器付きのセットアップとなるので、内装工事期間を設けずとすぐに業務をスタート出来るのが魅力です。執務席は18席、オープンスペースは15席、6名用会議室が1室、Web会議や電話対応に便利な個室ブースも2室設置されています。さらに、エントランスにはウェイティングスペースもあり、来客対応もスマートに行えます。オープンスペースは外の景色を感じながら、カジュアルなミーティングやリフレッシュ、気分転換にもぴったり。コミュニケーションが自然に生まれる設計になっています。また今回のフロアは原状回復工事は免除(退去時はクリーニングのみ)となりますので、フレキシブルな利用が叶う物件となっております。「すぐに使えるオフィスで、快適な環境を整えたい」「都心でアクセスの良い場所を探している」「コミュニケーションや働きやすさも重視したい」という方に、ぜひご検討いただきたい物件です。ご興味がありましたら、どうぞお気軽にお問い合わせください。
※掲載画像はイメージCGとなります。掲載内容とお引渡し状態が異なる場合は現況を優先させていただきます。
OVERVIEW
- 物件No.
- 2-3751
- 募集期間
- ご成約まで
- 所在地
- 港区西新橋
- 最寄駅
-
東京都交通局三田線
内幸町駅 徒歩2分
東京メトロ銀座線
虎ノ門駅 徒歩3分
東京メトロ千代田線
霞ヶ関駅 徒歩4分
- 面積
- 37.24坪 / 123.12㎡
- 会議室
- 6名掛け会議室×1
- 推奨人数
- 15~18人
- 構造
- 鉄骨造
- 規模
- 地下1階付9階建
- 施工
- 1987年
- エレベーター
- 1基
- 天井の高さ
- ―
- 空調
- 個別空調
- トイレ
- 専用 男女別 洋式
- 床仕様
- OAフロア
- 賃料
- 1,117,200円
- 共益費
- 賃料に含む
- 預託金
- 賃料の6ヶ月分
- 契約期間
- 2年
- 引き渡し時期
- 2025年12月上旬予定
- その他
- 更新料:無/ 償却:無/ 礼金:無/ 契約形態:普通賃貸借契約/ その他:契約の際には、貸主指定の保証会社と保証委託契約を締結していただきます。/
現在オンライン内覧が可能です
オンライン内覧について詳しくはこちら
CHECK IT!
この物件についてもっと詳しく
そのまんまオフィス会員
3つのメリット
-

物件の
詳細情報の公開 -

新着物件を
お知らせ -

未公開物件を
ご紹介












