Powered by
ホーム 千代田区の居抜き・セットアップオフィスを探す 【敷金最大0】神田駅徒歩2分!JR秋葉原駅も利用可能、内装・家具完備のフルセットアップオフィス

【敷金最大0】神田駅徒歩2分!JR秋葉原駅も利用可能、内装・家具完備のフルセットアップオフィス

募集中
エリア:千代田区神田須田町
広さ:30〜60坪
席数:20〜39席
公開日:2026.01.13

物件のご紹介

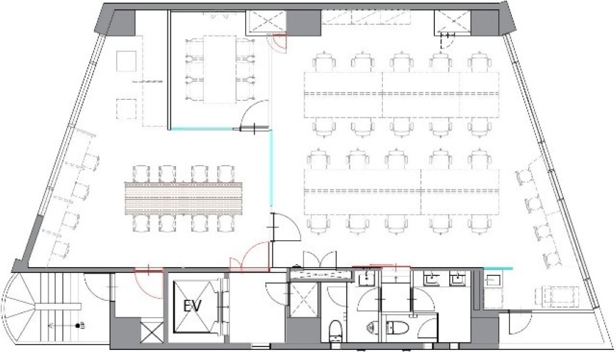
東京や新宿へのアクセスにも便利な神田エリアで、人気の高まるフルセットアップオフィス『Cocoro Kanda Bldg. 5階』をご紹介します。東京メトロ銀座線「神田駅」から徒歩わずか2分、JR「秋葉原駅」へも徒歩圏内という好立地に位置し、複数駅・路線を利用できる機動力の高さが魅力です。

約44坪の室内は20席程度での利用を想定したレイアウトで、内装だけでなく、家具什器まで完備したフルセットアップ仕様。室内は、広々とした使い勝手の良い長机を配置した執務エリアと、落ち着いた雰囲気のラウンジエリアで構成されています。ラウンジには窓際のカウンター席や、ゆったりとしたソファ席が備わっており、仕事の合間のリフレッシュや、メンバー同士のカジュアルなミーティングの場としても活用しやすい環境です。

さらに、「敷金最大0ヶ月」という破格の条件で、移転のスピード感だけでなく、コスト面を重視されるスタートアップ・ベンチャー企業様にも自信を持っておすすめできます。

資料請求や内覧希望の場合は、お気軽にお問い合わせください。

おすすめポイント

  1. 敷金最大0ヶ月で、移転にかかるイニシャルコストを大幅に削減
  2. 東京駅や新宿駅など、主要ビジネスエリアへのアクセスもしやすい好立地
  3. 家具付きフルセットアップオフィスでスムーズな移転をサポート

同ビル別フロアの物件はこちら

菅野 勇人

営業担当者

菅野 勇人

宅地建物取引士

セットアップオフィスから一般的なオフィスまで、多種多様なオフィスビルの魅力や特徴を熟知したオフィス物件マニア。

スタートアップ企業の移転支援経験が多く、そこで得た知見を活かし、お客様の理想のオフィス探しを全力でサポートいたします。

この物件を問い合わせる
物件概要
物件番号 fs-3425
物件名 Cocoro Kanda Bldg.
所在地 東京都千代田区神田須田町2-2-5
最寄り駅 東京メトロ銀座線
神田駅 徒歩2分

都営新宿線
岩本町駅 徒歩3分

JR 神田駅
徒歩4分

東京メトロ日比谷線
秋葉原駅 徒歩6分

JR 秋葉原駅
徒歩6分
階数 5階
面積 44.16坪(145.98㎡)
推奨席数 20名
物件タイプ フルセットアップオフィス
会議室数 6名掛け会議室×1室
竣工年 1983年4月
特徴・設備 # 敷金無し # 家具・什器付き # 会議室付き # 男女別トイレ # 2路線利用可 # 最寄り駅から徒歩5分以内
募集条件
月額賃料@坪単価 1,324,800円(坪30,000円)
敷金 / 保証金 最大0ヶ月
償却
礼金
更新料 / 再契約料
入居可能日 2026年4月1日予定
契約期間 2年
原状回復有無
保証契約

※表示価格は税抜き価格です。

この物件を問い合わせる

物件のお問い合わせフォーム

オフィス物件を探す

キーワード
カテゴリー

Get In Touch!!

希望条件が決まっていなくても、オフィス移転のプロが要件定義からご一緒させていただきます。まずはお気軽にご相談くださいませ。

お電話でのお問い合わせはこちら

03-6858-3030

平日
9:00~18:00