Powered by
ホーム 千代田区の居抜き・セットアップオフィスを探す 飯田橋駅徒歩1分!会議室設置済みで初期費用を抑えられるセットアップオフィス

飯田橋駅徒歩1分!会議室設置済みで初期費用を抑えられるセットアップオフィス

募集中
当社管理物件
エリア:千代田区飯田橋
広さ:〜30坪
席数:10席未満
公開日:2026.04.03

物件のご紹介

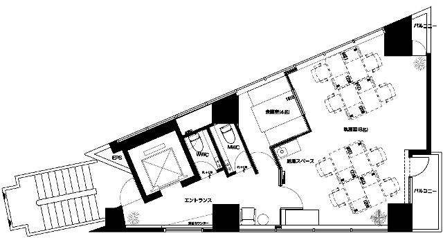
飯田橋駅からわずか徒歩1分。千代田区エリアの抜群のロケーションに位置する、約17坪のコンパクトなセットアップオフィス『SPROUT IIDABASHI』のご紹介です。

当物件は2022年にエントランスと専有部のリニューアルを完了し、洗練された空間に生まれ変わりました。内装工事済みで、室内には受付と4名用の会議室があらかじめ設置されており、ご入居後すぐに業務をスタートできます。男女別トイレやOAフロアといった、快適なオフィスに不可欠な設備も完備しています。

執務スペースと会議室はガラスウォールで仕切られており、打ち合わせに集中できる環境と、社内の一体感を両立したオープンな設計が魅力。壁一面の大きな窓からは自然光がたっぷりと差し込み、明るく開放的な雰囲気の中で心地よく仕事に打ち込めます。

デザインと機能性を兼ね備え、感度の高いスタートアップ企業様にぜひおすすめしたい物件です。内覧のご相談など、是非お気軽にお問い合わせ下さい。

※掲載写真は他フロアを撮影した参考写真です。

おすすめポイント

  1. 飯田橋駅徒歩1分の好立地物件
  2. 4名用会議室完備で、入居後すぐに業務を開始できるセットアップオフィス
  3. コンパクトサイズのオフィスながら、男女別トイレも完備の快適な環境
菅野 勇人

営業担当者

菅野 勇人

宅地建物取引士

 

セットアップオフィスから一般的なオフィスまで、多種多様なオフィスビルの魅力や特徴を熟知したオフィス物件マニア。

スタートアップ企業の移転支援経験が多く、そこで得た知見を活かし、お客様の理想のオフィス探しを全力でサポートいたします。

この物件を問い合わせる
物件概要
物件番号 s-2082
物件名 SPROUT IIDABASHI
所在地 東京都千代田区飯田橋3-11-25
最寄り駅 東京メトロ有楽町線
飯田橋駅 徒歩1分

東京メトロ東西線
飯田橋駅 徒歩1分

JR飯田橋駅
徒歩3分
階数 2F
面積 17.01坪(56.26m²)
推奨席数 8席
物件タイプ セットアップオフィス
会議室数 4名掛け会議室×1
テレカンブース数
竣工年 1999年3月
特徴・設備 # 会議室付き # 男女別トイレ # 2路線利用可 # 最寄り駅から徒歩5分以内
募集条件
月額賃料@坪単価 476,280円(坪28,000円)
敷金 / 保証金 1,905,120円(4ヶ月)
償却
礼金
更新料 / 再契約料
入居可能日 2026年9月26日
契約期間 2年
原状回復有無
保証契約

※表示価格は税抜き価格です。

この物件を問い合わせる

物件のお問い合わせフォーム

オフィス物件を探す

キーワード
カテゴリー

Get In Touch!!

希望条件が決まっていなくても、オフィス移転のプロが要件定義からご一緒させていただきます。まずはお気軽にご相談くださいませ。

お電話でのお問い合わせはこちら

03-6858-3030

平日
9:00~18:00