Powered by
ホーム 中央区の居抜き・セットアップオフィスを探す 八丁堀駅徒歩1分!会議室・専用のラウンジスペースを備えた築浅セットアップオフィス

八丁堀駅徒歩1分!会議室・専用のラウンジスペースを備えた築浅セットアップオフィス

募集終了
当社管理物件
エリア:中央区八丁堀
広さ:30〜60坪
席数:10〜19席
公開日:2025.09.01

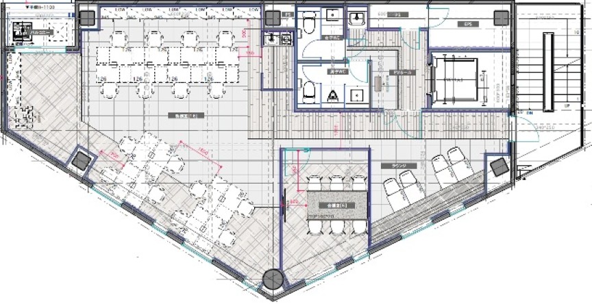
物件のご紹介

八丁堀駅より徒歩わずか1分、2024年3月竣工の新しさを感じるオフィスビル『合人社東京八丁堀ビル』のご紹介です。

約36坪の室内は、16名から18名規模に最適な広さでレイアウトされています。会議室をはじめとした内装が完備されているセットアップオフィスで、専用のラウンジスペースまで確保されており、スタートアップの多様なオフィスシーンに対応できる、利便性の高さが魅力です。(会議室・ラウンジ什器設置予定)

トイレの清掃は貸主負担となっており、オフィスの運用コストが抑えられる点も大きなメリット。
2025年12月下旬より入居可能となっておりますので、ご関心がございましたら、ぜひお早めにお問い合わせください。

おすすめポイント

  1. 八丁堀駅徒歩1分の好立地、JRと地下鉄の両方が利用可能
  2. 2024年竣工の新築ビルで、新しく快適な環境
  3. 6名用会議室と専用のラウンジスペースを備えたセットアップオフィス

菅野 勇人

営業担当者

菅野 勇人

宅地建物取引士

セットアップオフィスから一般的なオフィスまで、多種多様なオフィスビルの魅力や特徴を熟知したオフィス物件マニア。

スタートアップ企業の移転支援経験が多く、そこで得た知見を活かし、お客様の理想のオフィス探しを全力でサポートいたします。

この物件を問い合わせる
物件概要
物件番号 s-2400
物件名 合人社東京八丁堀ビル
所在地 東京都中央区八丁堀3-22-8
最寄り駅 東京メトロ日比谷線
八丁堀駅 徒歩1分

JR 八丁堀駅
徒歩1分

都営浅草線
宝町駅 徒歩7分

東京メトロ日比谷線
茅場町駅 徒歩7分

東京メトロ東西線
茅場町駅 徒歩10分
階数 3階
面積 36.54坪(120.80㎡)
推奨席数 16~18席
物件タイプ セットアップオフィス
会議室数 6名掛け会議室×1室
竣工年 2024年3月
特徴・設備 # 会議室付き # 新築・築浅 # 男女別トイレ # 2路線利用可 # 最寄り駅から徒歩5分以内
募集条件
月額賃料@坪単価 1,023,120円(@28,000円)
敷金 / 保証金 6,138,720円(6ヶ月)
償却
礼金
更新料 / 再契約料
入居可能日 2025年12月下旬予定
契約期間 相談
原状回復有無
保証契約

※表示価格は税抜き価格です。

この物件を問い合わせる

物件のお問い合わせフォーム

オフィス物件を探す

キーワード
カテゴリー

Get In Touch!!

希望条件が決まっていなくても、オフィス移転のプロが要件定義からご一緒させていただきます。まずはお気軽にご相談くださいませ。

お電話でのお問い合わせはこちら

03-6858-3030

平日
9:00~18:00