Powered by
ホーム 新宿区の居抜き・セットアップオフィスを探す 【初期費用0】四谷三丁目駅徒歩2分のWi-Fi付フルセットアップオフィス

【初期費用0】四谷三丁目駅徒歩2分のWi-Fi付フルセットアップオフィス

募集終了
当社貸主物件
仲介手数料無料
エリア:新宿区四谷
広さ:〜30坪
席数:10席未満
公開日:2024.11.26

物件のご紹介

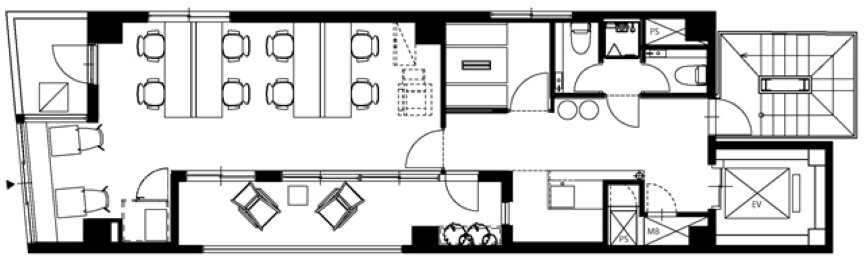
『Biz Feel 四谷三丁目』は四谷三丁目駅から徒歩2分、「新宿通り」沿いの視認性の高い立地にある、人気の内装・什器付きフルセットアップオフィスです。

約20坪という小規模向けオフィスの内部は、家具付きの「フルセットアップオフィス」へリニューアルされていることに加え、貴重なWi-Fi完備物件として、利便性の高いワークスペースを提供しています。

8席の執務スペース、4名掛けの会議室・テレカンブース1室が備え付けされてがおり、コンパクトでありながら、必要な機能が効率よく整備されています。

その他、リフレッシュやカジュアルミーティングに最適なソファ席、ゆとりのあるバルコニー、シャワースペースまで備わっているのも嬉しいポイント。

小規模チームや初めてのオフィス利用にも最適な物件です。「即日入居可」となっておりますので、是非お早めにご検討ください。

おすすめポイント

  1. 仲介手数料・敷金・原状回復義務無し!高いコストパフォーマンスを誇るリニューアル物件
  2. 最寄り駅徒歩2分でアクセス良好。周辺には飲食店も多数で利便性の高い環境
  3. 貴重なWi-Fi完備/家具付きフルセットアップオフィス
  4. ファミレス席、バルコニー、シャワースペースなどのリフレッシュスペースも充実
菅野 勇人

営業担当者

菅野 勇人

宅地建物取引士

 

セットアップオフィスから一般的なオフィスまで、多種多様なオフィスビルの魅力や特徴を熟知したオフィス物件マニア。

スタートアップ企業の移転支援経験が多く、そこで得た知見を活かし、お客様の理想のオフィス探しを全力でサポートいたします。

この物件を問い合わせる
物件概要
物件番号 fs-3019
物件名 Biz Feel 四谷三丁目
所在地 東京都新宿区四谷3-13-11
最寄り駅 東京メトロ丸ノ内線
四谷三丁目駅 徒歩2分

東京メトロ丸ノ内線
新宿御苑前駅 徒歩9分

JR四ツ谷駅
徒歩14分
階数 9F
面積 17.04坪 / 56.337m²
推奨席数 8席
物件タイプ フルセットアップオフィス
会議室数 4名掛け会議室×1
テレカンブース数 1室
竣工年 1994年3月
特徴・設備 # 敷金無し # 原状回復免除 # 家具・什器付き # テレカンブース付き # 会議室付き # Wi-Fi完備 # 男女別トイレ # 2路線利用可 # 最寄り駅から徒歩5分以内
募集条件
月額賃料@坪単価 ¥493,870円(坪29,000円)
敷金 / 保証金 最大0ヶ月
償却
礼金
更新料 / 再契約料
入居可能日 即日
契約期間 2年 (1年以内での解約不可)
原状回復有無
保証契約

※表示価格は税抜き価格です。

この物件を問い合わせる

物件のお問い合わせフォーム

オフィス物件を探す

キーワード
カテゴリー

Get In Touch!!

希望条件が決まっていなくても、オフィス移転のプロが要件定義からご一緒させていただきます。まずはお気軽にご相談くださいませ。

お電話でのお問い合わせはこちら

03-6858-3030

平日
9:00~18:00