Powered by
ホーム 新宿区の居抜き・セットアップオフィスを探す 新宿御苑前駅1分!会議室3室完備、モダンな内装が魅力の新装フルセットアップオフィス

新宿御苑前駅1分!会議室3室完備、モダンな内装が魅力の新装フルセットアップオフィス

募集中
当社管理物件
エリア:新宿区新宿
広さ:60〜80坪
席数:20〜39席
公開日:2025.11.25

物件のご紹介

新宿エリアでオフィスをお探しの企業様におすすめしたい、フルセットアップオフィス『@WORK SHINJUKUGYOEN』のご紹介です。

本物件は、東京メトロ丸ノ内線「新宿御苑前」駅から徒歩1分、JR「新宿」駅からも徒歩10分という好立地に位置する、利便性に優れたオフィスビルです。2024年2月にエントランスおよびEVホールの大規模リニューアルが完了しており、お客様を迎えるにあたって最適な環境が整っています。

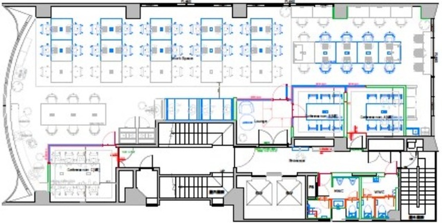
2026年2月には、白と木目を基調とした、モダンで洗練されたデザインのセットアップオフィスとして、内装セットアップ工事が完了する予定です。約73坪の室内には会議室3室を備え、それ以外にも、ビジネスシーンに合わせて使い分けができる、多様なワークスペースを確保しています。

内装だけでなく、家具・什器も完備しているため、スムーズな移転をご希望のスタートアップ企業様に最適です。ご関心がございましたら、ぜひお早めにお問い合わせください。

※座席数やレイアウトは変更になる場合がございます。
※掲載写真は他フロアを撮影した参考写真です。

おすすめポイント

  1. 「新宿御苑前」駅徒歩1分、JR「新宿」駅も徒歩圏内の交通至便な立地
  2. 家具・什器付きのフルセットアップオフィスで、移転費用・工数を大幅削減
  3. 多様な働き方を支える充実のワークスペース
  4. 新しく快適なオフィス環境
菅野 勇人

営業担当者

菅野 勇人

宅地建物取引士

セットアップオフィスから一般的なオフィスまで、多種多様なオフィスビルの魅力や特徴を熟知したオフィス物件マニア。

スタートアップ企業の移転支援経験が多く、そこで得た知見を活かし、お客様の理想のオフィス探しを全力でサポートいたします。

この物件を問い合わせる
物件概要
物件番号 fs-3372
物件名 @WORK SHINJUKUGYOEN
所在地 東京都新宿区新宿2-1-9
最寄り駅 東京メトロ丸ノ内線
新宿御苑前駅 徒歩1分

都営新宿線
新宿三丁目駅 徒歩5分

東京メトロ副都心線
新宿三丁目駅 徒歩5分

JR 新宿駅
徒歩10分

東京メトロ丸ノ内線
四谷三丁目駅 徒歩13分
階数 2階
面積 72.85坪(240.83㎡)
推奨席数 30~46席
物件タイプ フルセットアップオフィス
会議室数 会議室×3室
竣工年 1988年9月
特徴・設備 # 家具・什器付き # 会議室付き # 男女別トイレ # 駐車場有り # 2路線利用可 # 最寄り駅から徒歩5分以内
募集条件
月額賃料@坪単価 相談
敷金 / 保証金 相談
償却
礼金
更新料 / 再契約料
入居可能日 2026年3月上旬予定
契約期間 2年
原状回復有無
保証契約

※表示価格は税抜き価格です。

この物件を問い合わせる

物件のお問い合わせフォーム

オフィス物件を探す

キーワード
カテゴリー

Get In Touch!!

希望条件が決まっていなくても、オフィス移転のプロが要件定義からご一緒させていただきます。まずはお気軽にご相談くださいませ。

お電話でのお問い合わせはこちら

03-6858-3030

平日
9:00~18:00