Powered by
ホーム 台東・文京・豊島区の居抜き・セットアップオフィスを探す 【敷金最大0】JR水道橋駅徒歩7分!5路線利用可、上質な内装・空間が魅力の大型セットアップオフィス

【敷金最大0】JR水道橋駅徒歩7分!5路線利用可、上質な内装・空間が魅力の大型セットアップオフィス

募集中
当社管理物件
エリア:台東・文京・豊島区
広さ:80〜100坪
席数:40〜59席
公開日:2026.04.02

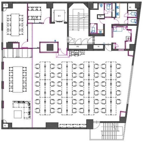
物件のご紹介

東京メトロ南北線「後楽園駅」から徒歩3分の距離に位置するセットアップオフィス『春日町ビル 6階』をご紹介します。JR「水道橋駅」も徒歩7分の距離にあり、計5路線が利用できる抜群のアクセス環境で、採用活動や来客対応においても大きなメリットのある物件です。

ご紹介の区画は広さ84.32坪(278.76㎡)、最大50名規模の大規模チームでのご利用を想定しています。

2021年5月に室内のリニューアル工事実施済みで、白を基調とした内装と温かみのある照明、備え付けの上質なインテリアが、自宅のようにリラックスできる、快適な執務空間を演出しています。広さの異なる会議室2室も完備しており、内装工事不要で、業務をすぐに開始できる環境が魅力です。

指定の保証会社利用で敷金不要と、初期費用を大幅に抑えられる点も、資金繰りを重要視されるスタートアップ・ベンチャー企業様にとって見逃せないポイント。

入居可能日は2026年9月23日を予定しています。内覧のご希望・詳細のお問い合わせは、ぜひお気軽にご連絡ください。

おすすめポイント

  1. 指定の保証会社利用で敷金不要、初期費用を大幅に削減
  2. JRも利用可能な、5路線利用可の好アクセス
  3. 執務スペースの内装に加え、会議室2室を完備したセットアップオフィス
  4. 2021年リニューアル済み、上質で温かみのある空間
菅野 勇人

営業担当者

菅野 勇人

宅地建物取引士

セットアップオフィスから一般的なオフィスまで、多種多様なオフィスビルの魅力や特徴を熟知したオフィス物件マニア。

スタートアップ企業の移転支援経験が多く、そこで得た知見を活かし、お客様の理想のオフィス探しを全力でサポートいたします。

この物件を問い合わせる
物件概要
物件番号 s-2510
物件名 春日町ビル
所在地 東京都文京区本郷1-33-13
最寄り駅 東京メトロ南北線
後楽園駅 徒歩3分

都営三田線
水道橋駅 徒歩4分

都営大江戸線
春日駅 徒歩4分

東京メトロ丸ノ内線
後楽園駅 徒歩6分

JR 水道橋駅
徒歩7分
階数 6階
面積 84.32坪(278.76㎡)
推奨席数 40〜50席
物件タイプ セットアップオフィス
会議室数 6名掛け会議室×1室
8名掛け会議室×1室
竣工年 1985年5月
特徴・設備 # 敷金無し # 会議室付き # 男女別トイレ # 2路線利用可 # 最寄り駅から徒歩5分以内
募集条件
月額賃料@坪単価 2,192,320円(坪26,000円)
敷金 / 保証金 最大0ヶ月
償却
礼金
更新料 / 再契約料 新賃料の1ヶ月分
入居可能日 2026年9月23日予定
契約期間 2年
原状回復有無
保証契約

※表示価格は税抜き価格です。

この物件を問い合わせる

物件のお問い合わせフォーム

オフィス物件を探す

キーワード
カテゴリー

Get In Touch!!

希望条件が決まっていなくても、オフィス移転のプロが要件定義からご一緒させていただきます。まずはお気軽にご相談くださいませ。

お電話でのお問い合わせはこちら

03-6858-3030

平日
9:00~18:00