Powered by
ホーム 新宿区の居抜き・セットアップオフィスを探す 【敷金最大0】四ツ谷駅徒歩4分!会議室完備のフルセットアップオフィス

【敷金最大0】四ツ谷駅徒歩4分!会議室完備のフルセットアップオフィス

募集終了
当社貸主物件
仲介手数料無料
エリア:新宿区四谷三栄町
広さ:〜30坪
席数:10〜19席
公開日:2024.11.26

物件のご紹介

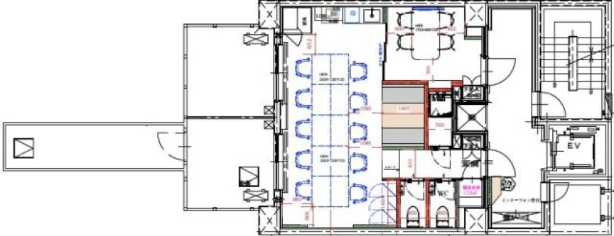
本物件は、JR・東京メトロ各線「四ツ谷」駅より徒歩4分、東京・銀座など、都内主要ビジネスエリアへのアクセスにも便利な立地に位置する、内装・家具付きのフルセットアップオフィスです。
2024年2月にセットアップ工事が完了しており、真新しく快適なオフィス環境をご利用いただけます。

約10名推奨の執務スペースには、業務に必要な家具・什器を完備。さらに、4名掛けの会議室1室と集中作業やオンライン会議に便利なテレカンブース1室も備え、移転後のスムーズな業務運営をサポートします。

【敷金最大0・原状回復不要(クリーニング費用のみ)】となっており、オフィス移転にかかる初期費用や退去時のコストを大幅に削減できるのも、コスト効率を重視されるスタートアップ・ベンチャー企業様にとって大きなポイント。

機能性とコスト効率を両立した都心部の人気物件となっております。ご検討の場合は、ぜひお早めにお問い合わせください。

おすすめポイント

  1. 敷金最大0/原状回復不要で、移転・退去コストを大幅削減
  2. 四ツ谷駅徒歩4分、JR・東京メトロの複数路線利用可能でアクセス抜群の好立地
  3. 会議室にテレカンブース、家具什器まで完備のフルセットアップオフィス
  4. 2024年2月セットアップ工事完了、新しく快適なオフィス環境
菅野 勇人

営業担当者

菅野 勇人

宅地建物取引士

セットアップオフィスから一般的なオフィスまで、多種多様なオフィスビルの魅力や特徴を熟知したオフィス物件マニア。

スタートアップ企業の移転支援経験が多く、そこで得た知見を活かし、お客様の理想のオフィス探しを全力でサポートいたします。

この物件を問い合わせる
物件概要
物件番号 fs-3199
物件名 NOVEL WORK Yotsuya
所在地 東京都新宿区四谷三栄町1-1
最寄り駅 JR 四ツ谷駅 徒歩4分

東京メトロ丸ノ内線
四ツ谷駅 徒歩4分
面積 19.61坪(64.83㎡)
推奨席数 10席
物件タイプ フルセットアップオフィス
会議室数 4名掛け会議室×1室
テレカンブース数 1室
竣工年 2022年1月
特徴・設備 # 敷金無し # 原状回復免除 # 家具・什器付き # テレカンブース付き # 会議室付き # 男女別トイレ # 2路線利用可 # 最寄り駅から徒歩5分以内
募集条件
月額賃料@坪単価 相談
敷金 / 保証金 最大0ヶ月
償却
礼金
更新料 / 再契約料
入居可能日 相談
契約期間 2年
原状回復有無
保証契約

※表示価格は税抜き価格です。

この物件を問い合わせる

物件のお問い合わせフォーム

オフィス物件を探す

キーワード
カテゴリー

Get In Touch!!

希望条件が決まっていなくても、オフィス移転のプロが要件定義からご一緒させていただきます。まずはお気軽にご相談くださいませ。

お電話でのお問い合わせはこちら

03-6858-3030

平日
9:00~18:00