Powered by
ホーム 千代田区の居抜き・セットアップオフィスを探す 水道橋駅徒歩4分!明るく開放的な什器・会議設備付きフルセットアップオフィス

水道橋駅徒歩4分!明るく開放的な什器・会議設備付きフルセットアップオフィス

募集終了
当社管理物件
エリア:千代田区
広さ:〜30坪
席数:10〜19席
公開日:2024.11.26

物件のご紹介

JR水道橋駅から徒歩わずか4分、4駅9路線が利用可能なアクセス抜群の立地に、明るく開放的なフルセットアップオフィスが登場です。

水道橋駅周辺は、多くの大学や研究機関、出版社などが集積するアカデミックな立地で、バラエティ豊かな飲食店も豊富に揃い、仕事の合間のランチや会食利用にも便利なエリア。
2022年10月に大規模なリニューアル工事が施されたオフィス内部は、「出来事」と「アイディア」を生み出すことをコンセプトに、窓面が多く明るく開放的な、創造性を高めるオフィス空間へと生まれ変わりました。


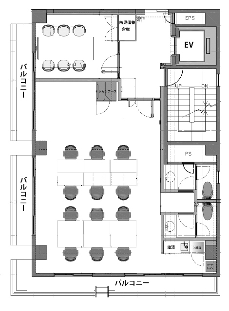
オフィススペースは、10名から15名程度の小規模スタートアップ企業のチームに最適なコンパクトな造り。執務室には12席分の什器が設置済みで、移転後のスムーズな事業運営をサポートします。さらには、6名掛け会議室とテレカンブースも完備しており快適なワークスタイルを実現する環境が整っているのも魅力です。

ご興味をお持ちいただけましたら、お気軽にお問い合わせください。

おすすめのポイント

  1. 4駅9路線利用可能な利便性の高いセットアップオフィス
  2. 6名掛けの会議室とテレカンブース1室完備で、入居後すぐに業務開始可能
  3. 窓面の多い明るい執務室に、12席分の什器が設置済み
菅野 勇人

営業担当者

菅野 勇人

宅地建物取引士

セットアップオフィスから一般的なオフィスまで、多種多様なオフィスビルの魅力や特徴を熟知したオフィス物件マニア。

スタートアップ企業の移転支援経験が多く、そこで得た知見を活かし、お客様の理想のオフィス探しを全力でサポートいたします。

この物件を問い合わせる
物件概要
物件番号 fs-3094
物件名 The corner 水道橋
所在地 東京都千代田区神田三崎町2-2-6
最寄り駅 JR 水道橋駅
徒歩4分

都営三田線
水道橋駅 徒歩5分

都営新宿線
神保町駅 徒歩7分
階数 5F
面積 26.92坪 (89.02㎡)
推奨席数 12席
物件タイプ フルセットアップオフィス
会議室数 6名掛け会議室×1
テレカンブース数 1室
竣工年 1983年5月
特徴・設備 # 家具・什器付き # テレカンブース付き # 会議室付き # 屋上 / テラス有り # 男女別トイレ # 駐車場有り # リノベーション済み # 2路線利用可 # 最寄り駅から徒歩5分以内
募集条件
月額賃料@坪単価 646,080円(坪24,000円)
敷金 / 保証金 2,584,320円(4ヶ月)
償却
礼金
更新料 / 再契約料
入居可能日 2025年6月1日
契約期間 2年
原状回復有無
保証契約

※表示価格は税抜き価格です。

この物件を問い合わせる

物件のお問い合わせフォーム

オフィス物件を探す

キーワード
カテゴリー

Get In Touch!!

希望条件が決まっていなくても、オフィス移転のプロが要件定義からご一緒させていただきます。まずはお気軽にご相談くださいませ。

お電話でのお問い合わせはこちら

03-6858-3030

平日
9:00~18:00