Powered by
ホーム 千代田区の居抜き・セットアップオフィスを探す 神保町駅徒歩3分、敷金最大0ヶ月・原状回復不要のフルセットアップオフィス

神保町駅徒歩3分、敷金最大0ヶ月・原状回復不要のフルセットアップオフィス

募集終了
当社貸主物件
仲介手数料無料
エリア:千代田区神田神保町
広さ:30〜60坪
席数:10〜19席
公開日:2024.11.26

物件のご紹介


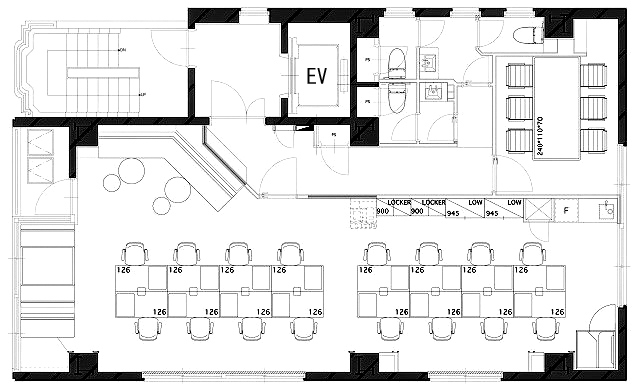
神保町駅A2出口から徒歩3分という抜群の利便性を誇るNOVEL WORK Jimbochoは、千代田区のビジネスエリアに位置する物件です。都心の中心地にありながら、静かな環境が魅力で、周辺には多くのカフェや飲食店が点在し、ビジネスミーティングにも最適です。1986年竣工の建物ですが、2025年5月にリニューアル工事が完了予定のため、最新設備が整った環境で業務を開始できます。敷金最大0ヶ月・原状回復不要で初期費用を抑えたい企業にもおすすめです。貸室内は、Wi-Fi完備となっており移転後に即稼働できるのも嬉しいポイントです。6名掛け会議室が1室、テレカンブース1室がございますので、大切な商談や打ち合わせでご利用いただけます。

またロッカーも設置されているので、貴重品などもしっかり収納できるようになっております。リニューアルされた綺麗で快適なオフィスへの移転、是非ご検討ください。

※掲載写真は他フロアのものを使用しています。

おすすめポイント

  1. 当社貸主のため仲介手数料不要
  2. 敷金最大0ヶ月・原状回復不要の初期費用が削減できるフルセットアップオフィス
  3. 神保町駅から徒歩3分、通勤や仕事移動に便利な立地
  4. 6名用会議室とテレカンブース1室完備。Wi-Fiも備わっているので即稼働可能
  5. ロッカー設置で貴重品などの保管も安心安全

同ビル別フロアの物件

菅野 勇人

営業担当者

菅野 勇人

宅地建物取引士

セットアップオフィスから一般的なオフィスまで、多種多様なオフィスビルの魅力や特徴を熟知したオフィス物件マニア。

スタートアップ企業の移転支援経験が多く、そこで得た知見を活かし、お客様の理想のオフィス探しを全力でサポートいたします。

この物件を問い合わせる
物件概要
物件番号 fs-3129
物件名 NOVEL WORK Jimbocho
所在地 東京都千代田区神田神保町2-8-20
最寄り駅 東京メトロ半蔵門線
神保町駅 徒歩3分

都営新宿線
神保町駅 徒歩3分

都営三田線
神保町駅 徒歩3分
階数 4階
面積 30.39坪
推奨席数 16席
物件タイプ フルセットアップオフィス
会議室数 6名掛け会議室×1
テレカンブース数 1室
竣工年 1986年3月
特徴・設備 # 敷金無し # 原状回復免除 # 家具・什器付き # テレカンブース付き # 会議室付き # Wi-Fi完備 # 男女別トイレ # 2路線利用可 # 最寄り駅から徒歩5分以内
募集条件
月額賃料@坪単価 790,140円(坪26,000円)
敷金 / 保証金 最大0ヶ月
償却
礼金
更新料 / 再契約料
入居可能日 2025年9月上旬
契約期間 2年(1年未満での解約不可)
原状回復有無
保証契約

※表示価格は税抜き価格です。

この物件を問い合わせる

物件のお問い合わせフォーム

オフィス物件を探す

キーワード
カテゴリー

Get In Touch!!

希望条件が決まっていなくても、オフィス移転のプロが要件定義からご一緒させていただきます。まずはお気軽にご相談くださいませ。

お電話でのお問い合わせはこちら

03-6858-3030

平日
9:00~18:00