Powered by
ホーム 千代田区の居抜き・セットアップオフィスを探す 【原状回復不要】神田駅徒歩5分、オープンスペース充実のフルセットアップオフィス

【原状回復不要】神田駅徒歩5分、オープンスペース充実のフルセットアップオフィス

募集終了
エリア:千代田区
広さ:30〜60坪
席数:10〜19席
公開日:2025.08.01

物件のご紹介

JR「神田駅」から徒歩5分、東京・新宿・渋谷など主要ビジネスエリアへのアクセスも良好な人気のエリアに、スタートアップ企業様におすすめの内装・家具付きフルセットアップオフィス『Ubiz神田千桜』が登場します。

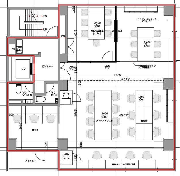
ご紹介の2階部分は、38.03坪(125.75㎡)の広さで、16名程度の利用を想定したレイアウトになっています。執務スペースに加え、7名掛けの会議室1室と、オンライン会議に必須のテレカンブース2台を完備。さらに、ソファ席を備えたセミオープンスペースもあり、オープンなミーティングやリフレッシュの場として多目的に活用できます。

さらに、通常使用であれば原状回復義務がない点も、コストを重視するスタートアップ企業様には見逃せないポイントです。

年内入居開始予定となっております。
ご関心がございましたら、ぜひお早めにお問い合わせください。

おすすめポイント

  1. 原状回復不要で、退去時のコストを削減
  2. JR「神田駅」徒歩5分、「岩本町駅」徒歩3分の好アクセス
  3. 会議室・テレカンブースに加え、多様な働き方を支えるセミオープンスペースが二か所
  4. 2024年5月に内装リニューアル済み、設備の新しいオフィス
菅野 勇人

営業担当者

菅野 勇人

宅地建物取引士

セットアップオフィスから一般的なオフィスまで、多種多様なオフィスビルの魅力や特徴を熟知したオフィス物件マニア。

スタートアップ企業の移転支援経験が多く、そこで得た知見を活かし、お客様の理想のオフィス探しを全力でサポートいたします。

この物件を問い合わせる
物件概要
物件番号 fs-3261
物件名 U biz 神田千桜
所在地 東京都千代田区神田東松下町31-1
最寄り駅 都営新宿線
岩本町駅 徒歩3分

JR 神田駅
徒歩5分

東京メトロ銀座線
神田駅 徒歩5分

東京メトロ日比谷線
秋葉原駅 徒歩6分

JR 秋葉原駅
徒歩8分

つくばエクスプレス
秋葉原駅 徒歩8分
階数 2階
面積 38.03坪(125.75㎡)
推奨席数 16席
物件タイプ フルセットアップオフィス
会議室数 7名掛け会議室×1
テレカンブース数 2室
竣工年 1988年8月
特徴・設備 # 敷金3ヶ月以下 # 原状回復免除 # 家具・什器付き # テレカンブース付き # 会議室付き # 男女別トイレ # 2路線利用可 # 最寄り駅から徒歩5分以内
募集条件
月額賃料@坪単価 1,026,810円(@27,000円)
敷金 / 保証金 2ヶ月
償却 賃料の1ヶ月分
礼金
更新料 / 再契約料 新賃料の1ヶ月分
入居可能日 2025年12月21日
契約期間 2年
原状回復有無
保証契約

※表示価格は税抜き価格です。

この物件を問い合わせる

物件のお問い合わせフォーム

オフィス物件を探す

キーワード
カテゴリー

Get In Touch!!

希望条件が決まっていなくても、オフィス移転のプロが要件定義からご一緒させていただきます。まずはお気軽にご相談くださいませ。

お電話でのお問い合わせはこちら

03-6858-3030

平日
9:00~18:00