Powered by
ホーム 千代田区の居抜き・セットアップオフィスを探す 【敷金最大0】東京駅や新宿駅へのアクセスにも便利な内装・家具付きフルセットアップオフィス

【敷金最大0】東京駅や新宿駅へのアクセスにも便利な内装・家具付きフルセットアップオフィス

募集終了
エリア:千代田区麹町
広さ:30〜60坪
席数:10〜19席
公開日:2025.09.12

物件のご紹介

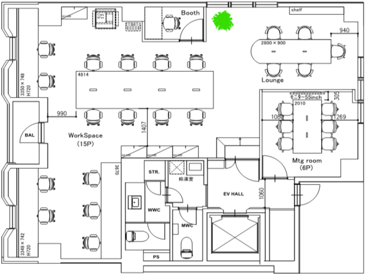
千代田区麹町エリアに登場した、内装家具付きでスタートアップ企業様からも人気の高いフルセットアップオフィス、『近代ビル』をご紹介します。

本物件は、東京メトロ有楽町線「麹町」駅から徒歩わずか2分、市ヶ谷駅/四ツ谷駅なども徒歩圏内で、東京駅や新宿駅方面へのアクセスもしやすい立地です。周辺には飲食店も豊富にあり、ランチや会食利用の環境としても充実しています。

約31坪のオフィス内部には、推奨15席の執務スペースに加え、6名掛けの会議室にテレカンブース、さらにはラウンジスペースまで完備。落ち着いたトーンの内装デザインで、洗練された空間を演出しています。

「敷金最大0ヶ月」で初期費用を抑えつつ、内装家具付きですぐにビジネスを開始できる点が大きな魅力です。資料請求や内覧希望の場合は、お気軽にお問い合わせください。

おすすめポイント

  1. 敷金最大0ヶ月、移転コストを大幅に削減可能
  2. 「麹町」駅徒歩2分、JRも徒歩圏内で東京駅や新宿駅へのアクセス良好
  3. 会議室にテレカンブース、ラウンジまで備えた、充実のフルセットアップオフィス
  4. 家具付きで移転作業もスムーズ
菅野 勇人

営業担当者

菅野 勇人

宅地建物取引士

セットアップオフィスから一般的なオフィスまで、多種多様なオフィスビルの魅力や特徴を熟知したオフィス物件マニア。

スタートアップ企業の移転支援経験が多く、そこで得た知見を活かし、お客様の理想のオフィス探しを全力でサポートいたします。

この物件を問い合わせる
物件概要
物件番号 fs-3311
物件名 近代ビル
所在地 東京都千代田区麹町3-12-5
最寄り駅 東京メトロ有楽町線
麹町駅 徒歩2分

東京メトロ半蔵門線
半蔵門駅 徒歩5分

JR 四ツ谷駅
徒歩10分

JR 市ヶ谷駅
徒歩10分
階数 4階
面積 31.00坪(102.48㎡)
推奨席数 15席
物件タイプ フルセットアップオフィス
会議室数 6名掛け会議室×1室
テレカンブース数 1室
竣工年 1992年2月
特徴・設備 # 敷金無し # 家具・什器付き # テレカンブース付き # 会議室付き # 男女別トイレ # 2路線利用可 # 最寄り駅から徒歩5分以内
募集条件
月額賃料@坪単価 899,000円(坪29,000円)
敷金 / 保証金 最大0ヶ月
償却
礼金
更新料 / 再契約料 新賃料の1ヶ月分
入居可能日 即日
契約期間 3年
原状回復有無
保証契約

※表示価格は税抜き価格です。

この物件を問い合わせる

物件のお問い合わせフォーム

オフィス物件を探す

キーワード
カテゴリー

Get In Touch!!

希望条件が決まっていなくても、オフィス移転のプロが要件定義からご一緒させていただきます。まずはお気軽にご相談くださいませ。

お電話でのお問い合わせはこちら

03-6858-3030

平日
9:00~18:00