Powered by
ホーム 千代田区の居抜き・セットアップオフィスを探す 【敷金・原状回復不要】秋葉原駅徒歩5分、Wi-Fi完備のフルセットアップオフィス

【敷金・原状回復不要】秋葉原駅徒歩5分、Wi-Fi完備のフルセットアップオフィス

募集中
当社貸主物件
仲介手数料無料
エリア:千代田区神田岩本町
広さ:〜30坪
席数:10〜19席
公開日:2025.11.14

物件のご紹介

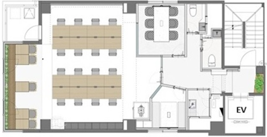
神田川近くの落ち着いた雰囲気のエリアに位置し、都営新宿線「岩本町」駅からは徒歩わずか2分。JR「秋葉原」駅からも徒歩5分の距離で、利便性抜群なフルセットアップオフィス『Biz Feel AKIHABARA』をご紹介します。

本物件は、推奨16席の執務スペースに、会議室2室とテレカンブース1室を完備。家具・什器付きで移転もスムーズです。貴重なWi-Fi完備物件のため、入居後直ぐに業務を開始できる点も大きな魅力となっています。

敷金最大0ヶ月、原状回復不要と、移転に関するコストを大幅に削減でき、資金繰りを重視されるスタートアップ・ベンチャー企業様にも最適な物件です。2026年1月にはエントランスや共用部のリニューアル工事も予定され、より快適なオフィス環境が整います。ご関心がございましたら、ぜひお早めにお問い合わせください。

おすすめポイント

  1. 当社貸主物件のため仲介手数料不要
  2. 敷金最大0ヶ月、原状回復不要で初期費用を大幅削減
  3. 内装・家具に加え、Wi-Fiまで完備のフルセットアップオフィス
  4. 神田川近くの落ち着いた周辺環境
菅野 勇人

営業担当者

菅野 勇人

宅地建物取引士

セットアップオフィスから一般的なオフィスまで、多種多様なオフィスビルの魅力や特徴を熟知したオフィス物件マニア。

スタートアップ企業の移転支援経験が多く、そこで得た知見を活かし、お客様の理想のオフィス探しを全力でサポートいたします。

この物件を問い合わせる
物件概要
物件番号 fs-3334
物件名 Biz Feel AKIHABARA
所在地 東京都千代田区神田岩本町1
最寄り駅 都営新宿線
岩本町駅 徒歩2分

JR 秋葉原駅
徒歩5分

東京メトロ日比谷線
秋葉原駅 徒歩5分

東京メトロ銀座線
神田駅 徒歩10分
階数 6階
面積 28.61坪(94.608㎡)
推奨席数 16席
物件タイプ フルセットアップオフィス
会議室数 2室
テレカンブース数 1室
竣工年 1989年9月
特徴・設備 # 敷金無し # 原状回復免除 # 家具・什器付き # テレカンブース付き # 会議室付き # Wi-Fi完備 # 男女別トイレ # 2路線利用可 # 最寄り駅から徒歩5分以内
募集条件
月額賃料@坪単価 1,000,000円
敷金 / 保証金 最大0ヶ月
償却
礼金
更新料 / 再契約料
入居可能日 2025年12月予定
契約期間 2年
原状回復有無
保証契約

※表示価格は税抜き価格です。

この物件を問い合わせる

物件のお問い合わせフォーム

オフィス物件を探す

キーワード
カテゴリー

Get In Touch!!

希望条件が決まっていなくても、オフィス移転のプロが要件定義からご一緒させていただきます。まずはお気軽にご相談くださいませ。

お電話でのお問い合わせはこちら

03-6858-3030

平日
9:00~18:00