Powered by
ホーム 千代田区の居抜き・セットアップオフィスを探す 半蔵門駅徒歩1分!会議室・個室ブース各2室完備、洗練されたデザインが魅力のフルセットアップオフィス

半蔵門駅徒歩1分!会議室・個室ブース各2室完備、洗練されたデザインが魅力のフルセットアップオフィス

募集中
当社貸主物件
仲介手数料無料
エリア:千代田区麹町
広さ:30〜60坪
席数:20〜39席
公開日:2026.02.17

物件のご紹介

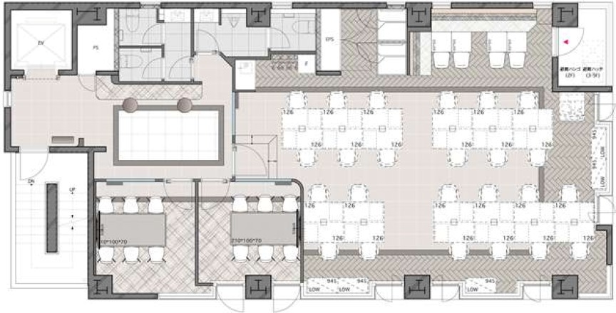
半蔵門駅徒歩1分、人気のフルセットアップオフィス『THE GATE HANZOMON』をご紹介します。

本物件は、2025年12月にエントランス・共用部・専有部のリニューアル工事が完了し、成長フェーズの企業様のブランディングや採用活動を強力に後押しする、洗練された内装デザインに生まれ変わりました。

約41坪の室内には24席の執務スペースに加え、6名用会議室2室と個室ブース2室を完備。 高品質な内装・什器があらかじめ備え付けられているため、入居初日からスムーズに業務を開始できる点が最大の魅力です。

スピード感が求められるスタートアップ企業様にとって、オフィス構築の手間を省き、事業成長に集中できる理想的な環境となっています。 ご関心がございましたら、ぜひお早めにお問い合わせください。

※掲載写真は他フロアを撮影した参考写真です。

おすすめポイント

  1. 当社貸主物件のため【仲介手数料不要】
  2. 内装・什器付きで移転コストを削減するフルセットアップオフィス
  3. 半蔵門駅徒歩1分、3駅利用可能で利便性も抜群
  4. 洗練された内装デザインは採用活動にも貢献

同ビル別フロアの物件はこちら

菅野 勇人

営業担当者

菅野 勇人

宅地建物取引士

セットアップオフィスから一般的なオフィスまで、多種多様なオフィスビルの魅力や特徴を熟知したオフィス物件マニア。

スタートアップ企業の移転支援経験が多く、そこで得た知見を活かし、お客様の理想のオフィス探しを全力でサポートいたします。

この物件を問い合わせる
物件概要
物件番号 fs-3380
物件名 THE GATE HANZOMON
所在地 東京都千代田区麹町1-8-1
最寄り駅 東京メトロ半蔵門線
半蔵門駅 徒歩1分

東京メトロ有楽町線
麹町駅 徒歩6分

東京メトロ南北線
永田町駅 徒歩12分
面積 40.94坪(135.36㎡)
推奨席数 24席
物件タイプ フルセットアップオフィス
会議室数 6名掛け会議室×2室
テレカンブース数 2室
竣工年 1989年10月
特徴・設備 # 家具・什器付き # テレカンブース付き # 会議室付き # 男女別トイレ # 2路線利用可 # 最寄り駅から徒歩5分以内
募集条件
月額賃料@坪単価 1,146,320円(坪28,000円)
敷金 / 保証金 6,877,920円(6ヶ月分)
償却
礼金
更新料 / 再契約料
入居可能日 即日
契約期間 2年
原状回復有無
保証契約

※表示価格は税抜き価格です。

この物件を問い合わせる

物件のお問い合わせフォーム

オフィス物件を探す

キーワード
カテゴリー

Get In Touch!!

希望条件が決まっていなくても、オフィス移転のプロが要件定義からご一緒させていただきます。まずはお気軽にご相談くださいませ。

お電話でのお問い合わせはこちら

03-6858-3030

平日
9:00~18:00