Powered by
ホーム 千代田区の居抜き・セットアップオフィスを探す 【敷金0・原状回復不要】馬喰横山駅4分、家具・Wi-Fi完備のフルセットアップオフィス

【敷金0・原状回復不要】馬喰横山駅4分、家具・Wi-Fi完備のフルセットアップオフィス

募集中
当社貸主物件
仲介手数料無料
エリア:千代田区東神田
広さ:〜30坪
席数:10〜19席
公開日:2026.04.22

物件のご紹介

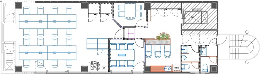
JR馬喰町駅より徒歩4分、機能性とデザイン性を兼ね備えたフルセットアップオフィス『フォーライフオフィス東神田ビル』をご紹介します。あらかじめ家具・什器やWi-Fi環境も整っているため、入居初日から快適にビジネスをスタートでき、スピード感を求めるスタートアップ企業に最適です。

約29坪の室内は、随所に木目やオフィスグリーンを取り入れた温もりある空間。最大16名まで対応可能な執務エリアに加え、来客対応や社内ミーティングに便利な6名用と4名用の会議室を各1室完備しています。Web会議専用のテレカンブースも2室あり、集中作業やオンライン商談にもスムーズに対応可能です。

さらに、本物件は敷金が最大0ヵ月、退去時の原状回復も不要となっており、初期費用から退去時のコストまでトータルで削減できる点が大きな魅力です。ご関心がありましたら、ぜひお早めにお問い合わせください。

※掲載写真は他フロアを撮影した参考写真です。

おすすめポイント

  1. 当社貸主物件のため【仲介手数料不要】
  2. 敷金最大0ヶ月・原状回復不要で、移転コストを大幅削減
  3. 内装や家具・什器に加え、Wi-Fiまで完備したフルセットアップオフィス
菅野 勇人

営業担当者

菅野 勇人

宅地建物取引士

セットアップオフィスから一般的なオフィスまで、多種多様なオフィスビルの魅力や特徴を熟知したオフィス物件マニア。

スタートアップ企業の移転支援経験が多く、そこで得た知見を活かし、お客様の理想のオフィス探しを全力でサポートいたします。

この物件を問い合わせる
物件概要
物件番号 fs-3397
物件名 フォーライフオフィス東神田ビル
所在地 東京都千代田区東神田2-10-16
最寄り駅 都営新宿線
馬喰横山駅 徒歩4分

JR 馬喰町駅
徒歩4分

都営新宿線
岩本町駅 徒歩7分
階数 8階
面積 29.46坪(97.40㎡)
推奨席数 16席
物件タイプ フルセットアップオフィス
会議室数 4名掛け会議室×1室
6名掛け会議室×1室
テレカンブース数 2室
竣工年 1992年6月
特徴・設備 # 敷金無し # 原状回復免除 # 家具・什器付き # テレカンブース付き # 会議室付き # Wi-Fi完備 # 男女別トイレ # 2路線利用可 # 最寄り駅から徒歩5分以内
募集条件
月額賃料@坪単価 765,960円(坪26,000円)
敷金 / 保証金 最大0ヶ月
償却
礼金
更新料 / 再契約料
入居可能日 2026年8月~9月
契約期間 2年(12ヶ月間解約不可)
原状回復有無
保証契約

※表示価格は税抜き価格です。

この物件を問い合わせる

物件のお問い合わせフォーム

オフィス物件を探す

キーワード
カテゴリー

Get In Touch!!

希望条件が決まっていなくても、オフィス移転のプロが要件定義からご一緒させていただきます。まずはお気軽にご相談くださいませ。

お電話でのお問い合わせはこちら

03-6858-3030

平日
9:00~18:00