Powered by
ホーム 千代田区の居抜き・セットアップオフィスを探す 【敷金0・原状回復不要】神保町駅徒歩3分!内装・家具・Wi-Fi完備のフルセットアップオフィス

【敷金0・原状回復不要】神保町駅徒歩3分!内装・家具・Wi-Fi完備のフルセットアップオフィス

募集中
当社貸主物件
仲介手数料無料
エリア:千代田区神田神保町
広さ:30〜60坪
席数:10〜19席
公開日:2026.03.12

物件のご紹介

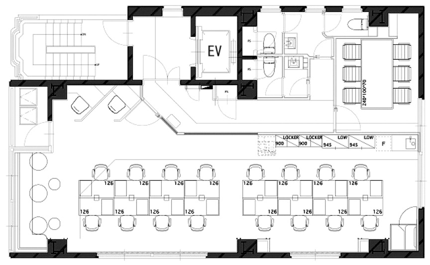
神保町エリアで、理想のオフィスをお探しのスタートアップ企業様におすすめの『NOVEL WORK Jimbocho』のご紹介です。都営新宿線や東京メトロ半蔵門線など3路線が利用可能な神保町駅から徒歩3分と、通勤や客先訪問にも大変便利なロケーションに位置しています。

2024年2月にリニューアルされた貸室内は、壁一面のカラフルなアートワークが印象的な空間。約30坪の空間を有効活用したフルセットアップ仕様となっており、Wi-Fi環境も整っているため、入居後すぐに快適な環境で業務を開始できます。

会議室やテレカンブースはもちろん、集中作業用のブース席やリフレッシュに最適なソファ席まで完備され、社員の皆様の多様な働き方をサポートします。

これだけの充実した設備ながら、敷金は最大0ヵ月で、退去時の原状回復義務もありません。初期費用と退去時コストを最小限に抑えつつ、ハイグレードなオフィス環境を手に入れる絶好の機会です。資料請求や内覧希望の場合は、お気軽にお問い合わせください。

おすすめポイント

  1. 当社貸主物件のため【仲介手数料不要】
  2. 敷金最大0、かつ原状回復義務なしのため、移転コストを大幅に削減可能
  3. 神保町駅徒歩3分の好立地、3路線利用で都内各所へスムーズに移動可能
  4. 多様なワークスペースを備えた、Wi-Fi完備のフルセットアップオフィス
菅野 勇人

営業担当者

菅野 勇人

宅地建物取引士

セットアップオフィスから一般的なオフィスまで、多種多様なオフィスビルの魅力や特徴を熟知したオフィス物件マニア。

スタートアップ企業の移転支援経験が多く、そこで得た知見を活かし、お客様の理想のオフィス探しを全力でサポートいたします。

この物件を問い合わせる
物件概要
物件番号 fs-3406
物件名 NOVEL WORK Jimbocho
所在地 東京都千代田区神田神保町2-8-20
最寄り駅 東京メトロ半蔵門線
神保町駅 徒歩3分

都営新宿線
神保町駅 徒歩3分

都営三田線
神保町駅 徒歩3分
階数 3階
面積 30.39坪(100.49㎡)
推奨席数 16席
物件タイプ フルセットアップオフィス
会議室数 6名掛け会議室×1室
テレカンブース数 1室
竣工年 1986年3月
特徴・設備 # 敷金無し # 原状回復免除 # 家具・什器付き # テレカンブース付き # 会議室付き # Wi-Fi完備 # 男女別トイレ # 最寄り駅から徒歩5分以内 # 2路線利用可
募集条件
月額賃料@坪単価 790,140円(坪26,000円)
敷金 / 保証金 最大0ヶ月
償却
礼金
更新料 / 再契約料
入居可能日 相談
契約期間 2年(12ヶ月間解約不可)
原状回復有無
保証契約

※表示価格は税抜き価格です。

この物件を問い合わせる

物件のお問い合わせフォーム

オフィス物件を探す

キーワード
カテゴリー

Get In Touch!!

希望条件が決まっていなくても、オフィス移転のプロが要件定義からご一緒させていただきます。まずはお気軽にご相談くださいませ。

お電話でのお問い合わせはこちら

03-6858-3030

平日
9:00~18:00