Powered by
ホーム 千代田区の居抜き・セットアップオフィスを探す 【原状回復不要】2026年5月リニューアル!市ヶ谷駅徒歩4分の新装フルセットアップオフィス

【原状回復不要】2026年5月リニューアル!市ヶ谷駅徒歩4分の新装フルセットアップオフィス

募集中
当社管理物件
エリア:千代田区九段南
広さ:〜30坪
席数:10〜19席
公開日:2026.01.30

物件のご紹介

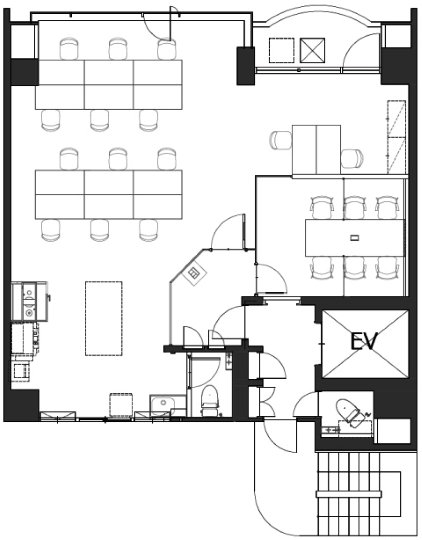
千代田区九段南エリアで、2026年5月リニューアル完成予定のフルセットアップオフィス『靖国外苑ビル』をご紹介します。本物件は「市ヶ谷駅」から徒歩4分の距離に位置し、東京メトロ南北線や有楽町線、JR線など、計4路線が利用可能です。

約27坪の専有部は14名程度の利用を想定しており、コンパクトな設計ながら、6名用会議室1室に加え、テレカンブース1室も完備。執務に必要な家具什器まであらかじめ設置されているため、入居直後から快適に業務を開始できる環境が整っています。

敷金は賃料の3ヶ月分のみで、退去時の原状回復義務がない点も大きなメリットです。移転コストを削減しつつ、機能的なオフィスへの移転を実現されたい成長フェーズのスタートアップ・ベンチャー企業様に最適な物件と言えます。

資料請求や詳細確認をご希望の場合は、ぜひお気軽にお問い合わせください。

おすすめポイント

  1. 敷金3ヶ月・原状回復不要で、移転コストを抑えられる
  2. 会議室・テレカンブース・家具什器まで完備のフルセットアップオフィス
  3. 市ヶ谷駅から徒歩4分、複数路線が利用可能な交通至便な立地
  4. 2026年5月リニューアルの新しい内装
菅野 勇人

営業担当者

菅野 勇人

宅地建物取引士

セットアップオフィスから一般的なオフィスまで、多種多様なオフィスビルの魅力や特徴を熟知したオフィス物件マニア。

スタートアップ企業の移転支援経験が多く、そこで得た知見を活かし、お客様の理想のオフィス探しを全力でサポートいたします。

この物件を問い合わせる
物件概要
物件番号 fs-3445
物件名 靖国外苑ビル
所在地 東京都千代田区九段南3-8-10
最寄り駅 東京メトロ南北線
市ヶ谷駅 徒歩4分

東京メトロ有楽町線
市ヶ谷駅 徒歩4分

都営新宿線
市ヶ谷駅 徒歩4分

JR 市ヶ谷駅
徒歩8分

都営新宿線
九段下駅 徒歩10分
階数 5階
面積 27.27坪(90.133㎡)
推奨席数 14席
物件タイプ フルセットアップオフィス
会議室数 6名掛け会議室×1室
テレカンブース数 1室
竣工年 1982年10月
特徴・設備 # 敷金3ヶ月以下 # 原状回復免除 # 家具・什器付き # テレカンブース付き # 会議室付き # 男女別トイレ # 2路線利用可 # 最寄り駅から徒歩5分以内
募集条件
月額賃料@坪単価 736,290円(坪27,000円)
敷金 / 保証金 2,208,870円(3ヶ月)
償却
礼金
更新料 / 再契約料 新賃料の1ヶ月分
入居可能日 2026年5月上旬予定
契約期間 2年
原状回復有無
保証契約

※表示価格は税抜き価格です。

この物件を問い合わせる

物件のお問い合わせフォーム

オフィス物件を探す

キーワード
カテゴリー

Get In Touch!!

希望条件が決まっていなくても、オフィス移転のプロが要件定義からご一緒させていただきます。まずはお気軽にご相談くださいませ。

お電話でのお問い合わせはこちら

03-6858-3030

平日
9:00~18:00