Powered by
ホーム 千代田区の居抜き・セットアップオフィスを探す 【敷金最大0・即入居可】九段下駅徒歩4分、会議室2室完備のフルセットアップオフィス

【敷金最大0・即入居可】九段下駅徒歩4分、会議室2室完備のフルセットアップオフィス

募集中
エリア:千代田区飯田橋
広さ:30〜60坪
席数:20〜39席
公開日:2026.02.24

物件のご紹介

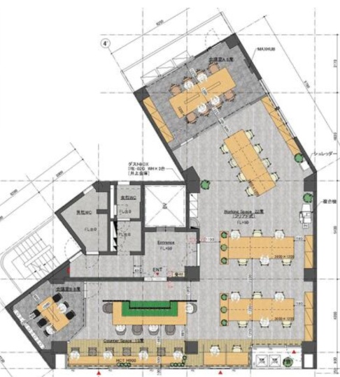
千代田区飯田橋エリアで、スムーズな移転を希望されるスタートアップ・ベンチャー企業様におすすめの『S-Glanz KUDAN BLD. 8階』をご紹介します。

東京メトロ「九段下駅」から徒歩4分、JR「飯田橋駅」も徒歩圏内で利用可能な立地にある本物件は、2025年12月に内装工事が完了したばかりのフルセットアップオフィスです。

専有部面積は約56坪で、22〜30名規模のチームにも対応できる広さ。執務スペースには木目調のデスクとブルー系のカーペットが採用され、落ち着いた雰囲気の中で集中して業務に取り組める環境が整っています。

デザインだけでなく機能性の面でも優れ、あらかじめ備えられたガラスパーテーションの明るい会議室2室や、窓際のカウンター席・ブース席など、多様な働き方をサポートする設計が魅力です。

家具・什器セット済み、即日入居可能で、スムーズな移転をサポートします。ご関心をお持ちの場合は、ぜひお早めにお問い合わせください。

おすすめポイント

  1. 敷金最大0ヶ月で、初期費用を大幅に削減可能
  2. 家具什器セット済み・会議室2室完備のフルセットアップオフィス
  3. 2025年12月セットアップ工事完了、1階外観・エントランスもリニューアル済み
菅野 勇人

営業担当者

菅野 勇人

宅地建物取引士

セットアップオフィスから一般的なオフィスまで、多種多様なオフィスビルの魅力や特徴を熟知したオフィス物件マニア。

スタートアップ企業の移転支援経験が多く、そこで得た知見を活かし、お客様の理想のオフィス探しを全力でサポートいたします。

この物件を問い合わせる
物件概要
物件番号 fs-3466
物件名 S-Glanz KUDAN BLD.
所在地 東京都千代田区飯田橋2-1-5
最寄り駅 東京メトロ東西線
九段下駅 徒歩4分

東京メトロ半蔵門線
九段下駅 徒歩4分

都営地下鉄新宿線
九段下駅 徒歩4分

JR 飯田橋駅
徒歩10分

東京メトロ東西線
飯田橋駅 徒歩10分
階数 8階
面積 56.11坪(185.50㎡)
推奨席数 22~30席
物件タイプ フルセットアップオフィス
会議室数 6名掛け会議室×1室
8名掛け会議室×1室
竣工年 1986年5月
特徴・設備 # 敷金無し # 家具・什器付き # 会議室付き # 男女別トイレ # 2路線利用可 # 最寄り駅から徒歩5分以内
募集条件
月額賃料@坪単価 1,403,000円
敷金 / 保証金 最大0ヶ月~6ヶ月
償却
礼金
更新料 / 再契約料
入居可能日 即日
契約期間 2年
原状回復有無
保証契約

※表示価格は税抜き価格です。

この物件を問い合わせる

物件のお問い合わせフォーム

オフィス物件を探す

キーワード
カテゴリー

Get In Touch!!

希望条件が決まっていなくても、オフィス移転のプロが要件定義からご一緒させていただきます。まずはお気軽にご相談くださいませ。

お電話でのお問い合わせはこちら

03-6858-3030

平日
9:00~18:00