Powered by
ホーム 千代田区の居抜き・セットアップオフィスを探す 【敷金0・原状回復不要】秋葉原駅徒歩4分!家具什器・Wi-Fi完備のフルセットアップオフィス

【敷金0・原状回復不要】秋葉原駅徒歩4分!家具什器・Wi-Fi完備のフルセットアップオフィス

募集中
当社貸主物件
仲介手数料無料
エリア:千代田区神田佐久間町
広さ:〜30坪
席数:10〜19席
公開日:2026.02.27

物件のご紹介

JR・東京メトロ日比谷線「秋葉原駅」から徒歩4分。東京・新宿・上野方面へのアクセスにも便利な秋葉原駅周辺で、効率的なオフィス移転をご希望のスタートアップ企業様に最適な『NOVEL WORK AKIHABARA』をご紹介します。

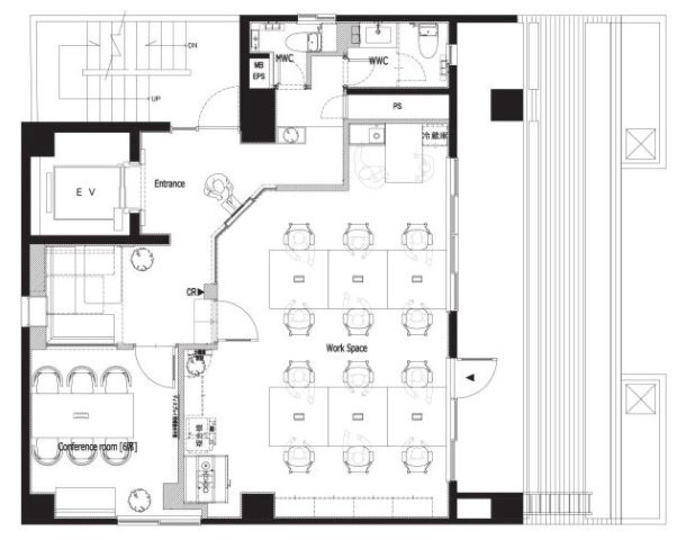
本物件は、2025年6月に内装造作付きセットアップ工事が完了したばかりのフルセットアップオフィスで、面積は22.60坪(74.73㎡)、最大12席でのご利用を想定しています。

会議室・テレカンブースをあらかじめ完備しているほか、受付にはソファ席付きラウンジも設けられているため、来客対応や社内のちょっとした休憩にも柔軟に対応可能。専有部内の家具・什器、さらにはWi-Fi環境まですべて揃っており、効率的な移転をサポートします。

敷金最大0ヶ月・原状回復義務なしと、移転にかかる初期費用・退去費用を大幅に抑えられる点も大きな魅力です。

資料請求や内覧をご希望の場合は、ぜひお気軽にお問い合わせください。

おすすめポイント

  1. 当社貸主物件のため【仲介手数料不要】
  2. 敷金最大0・原状回復義務なしで、初期費用・退去コストを大幅削減
  3. 家具・什器・Wi-Fi環境まで備えた、機能性の高いフルセットアップオフィス
菅野 勇人

営業担当者

菅野 勇人

宅地建物取引士

セットアップオフィスから一般的なオフィスまで、多種多様なオフィスビルの魅力や特徴を熟知したオフィス物件マニア。

スタートアップ企業の移転支援経験が多く、そこで得た知見を活かし、お客様の理想のオフィス探しを全力でサポートいたします。

この物件を問い合わせる
物件概要
物件番号 fs-3474
物件名 NOVEL WORK AKIHABARA
所在地 東京都千代田区神田佐久間町3-37-4
最寄り駅 JR 秋葉原駅
徒歩4分

東京メトロ日比谷線
秋葉原駅 徒歩4分

都営新宿線
岩本町駅 徒歩6分
階数 5階
面積 22.60坪(74.73㎡)
推奨席数 12席
物件タイプ フルセットアップオフィス
会議室数 6名掛け会議室×1室
テレカンブース数 1室
竣工年 1985年8月
特徴・設備 # 敷金無し # 原状回復免除 # 家具・什器付き # テレカンブース付き # 会議室付き # Wi-Fi完備 # 男女別トイレ # 2路線利用可 # 最寄り駅から徒歩5分以内
募集条件
月額賃料@坪単価 655,400円
敷金 / 保証金 最大0ヶ月
償却
礼金
更新料 / 再契約料
入居可能日 2026年7月下旬予定
契約期間 2年(12ヶ月間解約不可)
原状回復有無
保証契約

※表示価格は税抜き価格です。

この物件を問い合わせる

物件のお問い合わせフォーム

オフィス物件を探す

キーワード
カテゴリー

Get In Touch!!

希望条件が決まっていなくても、オフィス移転のプロが要件定義からご一緒させていただきます。まずはお気軽にご相談くださいませ。

お電話でのお問い合わせはこちら

03-6858-3030

平日
9:00~18:00