Powered by
ホーム 千代田区の居抜き・セットアップオフィスを探す 神保町駅徒歩3分!機能性と快適性を備えた新築セットアップオフィス

神保町駅徒歩3分!機能性と快適性を備えた新築セットアップオフィス

募集終了
当社貸主物件
仲介手数料無料
エリア:千代田区神田神保町
広さ:60〜80坪
席数:40〜59席
公開日:2024.11.26

物件のご紹介

「mirio神保町」は、神保町駅徒歩3分、駅近ながら閑静な周辺環境が魅力のセットアップオフィスです。JR御茶ノ水駅も徒歩圏内で、東京や新宿などの都内主要エリアへのスムーズなアクセスが、ビジネスチャンスを広げます。

物件の位置する神保町は、古書店街や大学などが集まる知的創造性あふれるエリア。スタートアップ企業にとって、新たなイノベーションの種が生まれる絶好のロケーションです。周辺には飲食店も豊富で、ビジネスランチやカジュアルな交流にも便利な環境となっています。

2023年8月竣工の築浅オフィスビル9階の本物件は、2024年にはエントランスのリニューアル工事も実施完了しており、クライアントやパートナーへの好印象も与えることができる、温かみのある内装デザインが特徴。エントランスはオートロックとなっており、敷地内に駐車場設備も備えているため、デザイン制だけでなく、高い利便性も魅力です。

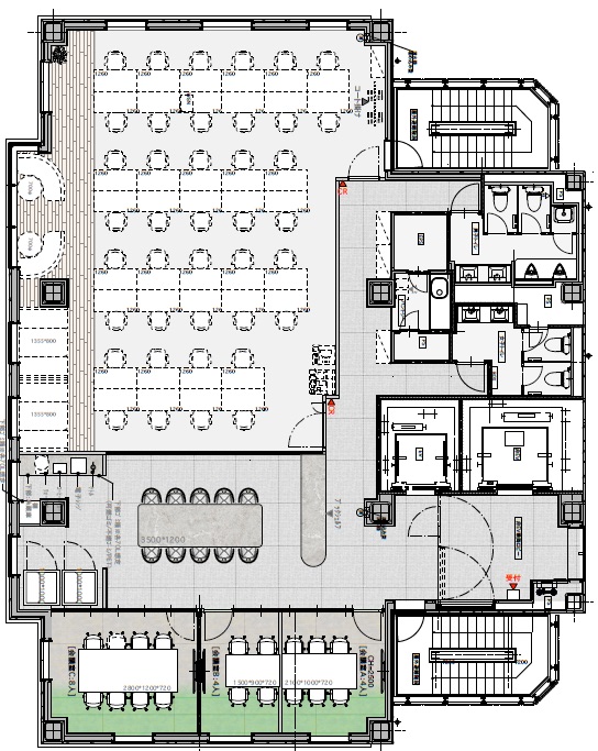
オフィスフロアはゆとりある天井高で、ビッグテーブルを設置したラウンジも備えており、従業員にとっても快適で生産性の高まるワーク環境を提供します。また、3タイプの会議室(4名様用×1、6名様用×1、8名様用×1)と2室のテレカンブース、最大40名収容の広々とした執務室で構成されるワークスペースは、スタートアップ独特の急速なチーム拡大にも、柔軟に対応することができます。

都心のアクセスと利便性を享受しながら、落ち着いた環境でビジネスに集中できる「mirio神保町」。 内覧のご予約やお問い合わせは、ぜひお気軽にご連絡ください。

おすすめのポイント

  1. 仲介手数料不要、原状回復最大ゼロの移転費用を大幅に抑えられるセットアップオフィス
  2. 駅近物件ながら閑静なエリアに位置する落ち着いたオフィス環境
  3. 会議室・個室ブース完備で会議もスムーズに行える
  4. 温かみのある内装と高い機能性を兼ね備えたオフィスデザイン

営業担当者

この物件を問い合わせる
物件概要
物件番号 s-2023
物件名 mirio神保町
所在地 東京都千代田区神田神保町1-28-1
最寄り駅 東京メトロ半蔵門線
神保町駅 徒歩3分

都営新宿線
神保町駅 徒歩3分

JR 御茶ノ水駅
徒歩9分
階数 9F
面積 79.27坪 (262.05m²)
推奨席数 40席
物件タイプ セットアップオフィス
会議室数 4名掛け会議室×1
6名掛け会議室×1
8名掛け会議室×1
テレカンブース数 2室
竣工年 2023年8月
特徴・設備 # 敷金無し # テレカンブース付き # 会議室付き # 男女別トイレ # 駐車場有り # 新築・築浅 # 2路線利用可 # 最寄り駅から徒歩5分以内
募集条件
月額賃料@坪単価 相談
敷金 / 保証金 最大0ヶ月
償却
礼金
更新料 / 再契約料
入居可能日 即日
契約期間 2年
原状回復有無
保証契約

※表示価格は税抜き価格です。

この物件を問い合わせる

物件のお問い合わせフォーム

オフィス物件を探す

キーワード
カテゴリー

Get In Touch!!

希望条件が決まっていなくても、オフィス移転のプロが要件定義からご一緒させていただきます。まずはお気軽にご相談くださいませ。

お電話でのお問い合わせはこちら

03-6858-3030

平日
9:00~18:00