Powered by
ホーム 千代田区の居抜き・セットアップオフィスを探す JR秋葉原駅徒歩7分!屋上テラス利用可、大規模リニューアル実施済みのセットアップオフィス

JR秋葉原駅徒歩7分!屋上テラス利用可、大規模リニューアル実施済みのセットアップオフィス

募集中
当社管理物件
エリア:千代田区岩本町
広さ:〜30坪
席数:10〜19席
公開日:2026.03.02

物件のご紹介

千代田区岩本町エリアで、機能性と快適性を兼ね備えたオフィスをお探しのスタートアップ企業様におすすめの『合人社東京秋葉原ビル』9階区画のご紹介です。

都営新宿線「岩本町駅」から徒歩わずか3分という好立地に加え、JRや東京メトロ日比谷線の「秋葉原駅」へも徒歩圏内でアクセスでき、複数路線を使い分けられる利便性の高さが魅力です。室内は約27坪の広さを有し、14名から18名程度の利用に適したセットアップオフィスとして仕上げられています。

本物件は、2019年に大規模リニューアル工事が実施されており、エントランスや貸室内は築年数を感じさせない清潔感あふれる空間に生まれ変わりました。あらかじめ会議室が1室設けられているため内装工事の手間が省けるほか、入居テナント様専用の屋上テラスも完備されており、仕事の合間のリフレッシュスペースとしてもご活用いただけます。

資料請求や内覧希望の場合は、お気軽にお問い合わせください。

※掲載写真は他フロアを撮影した参考写真です。

おすすめポイント

  1. 岩本町駅徒歩3分、秋葉原駅も利用可能な交通至便な立地
  2. 内装工事済みのセットアップオフィスで、スムーズな移転をサポート
  3. 2019年大規模リニューアル実施済みの清潔感ある共用部
  4. 入居テナント様専用屋上テラス完備で、リフレッシュもしやすい環境
菅野 勇人

営業担当者

菅野 勇人

宅地建物取引士

セットアップオフィスから一般的なオフィスまで、多種多様なオフィスビルの魅力や特徴を熟知したオフィス物件マニア。

スタートアップ企業の移転支援経験が多く、そこで得た知見を活かし、お客様の理想のオフィス探しを全力でサポートいたします。

この物件を問い合わせる
物件概要
物件番号 s-2416
物件名 合人社東京秋葉原ビル
所在地 東京都千代田区岩本町3-5-2
最寄り駅 都営新宿線
岩本町駅 徒歩3分

東京メトロ日比谷線
秋葉原駅 徒歩5分

JR 秋葉原駅
徒歩7分
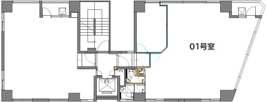
階数 901号室(9階)
面積 27.76坪(91.78㎡)
推奨席数 14~18席
物件タイプ セットアップオフィス
会議室数 1室
テレカンブース数 無し
竣工年 1985年5月
特徴・設備 # 会議室付き # 屋上 / テラス有り # 男女別トイレ # 2路線利用可 # 最寄り駅から徒歩5分以内
募集条件
月額賃料@坪単価 638,480円(坪23,000円)
敷金 / 保証金 3,830,880円(6ヶ月分)
償却
礼金
更新料 / 再契約料
入居可能日 2026年3月
契約期間 相談
原状回復有無
保証契約

※表示価格は税抜き価格です。

この物件を問い合わせる

物件のお問い合わせフォーム

オフィス物件を探す

キーワード
カテゴリー

Get In Touch!!

希望条件が決まっていなくても、オフィス移転のプロが要件定義からご一緒させていただきます。まずはお気軽にご相談くださいませ。

お電話でのお問い合わせはこちら

03-6858-3030

平日
9:00~18:00