Powered by
ホーム 千代田区の居抜き・セットアップオフィスを探す JR神田駅徒歩5分!昭和通り沿いビルの1階区画、清潔感あふれる内装が魅力のセットアップオフィス

JR神田駅徒歩5分!昭和通り沿いビルの1階区画、清潔感あふれる内装が魅力のセットアップオフィス

募集中
当社貸主物件
仲介手数料無料
エリア:千代田区神田紺屋町
広さ:〜30坪
席数:10〜19席
公開日:2026.03.20

物件のご紹介

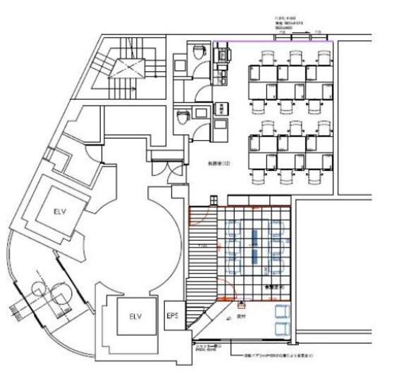
神田・岩本町エリアで、スムーズな移転をご希望のスタートアップ企業様におすすめの、セットアップオフィス『グランファースト神田紺屋町』をご紹介します。神田駅・岩本町駅がいずれも徒歩5分圏内、さらに「昭和通り」沿いの1階路面というロケーションにあるため、来客への案内もしやすく、企業の顔として申し分のない環境です。

約23坪の室内は、最大12名の利用を想定した成長フェーズの企業に最適なレイアウトで、白と木目基調の、清潔感あふれる内装で統一されています。開放感のある6名掛けの会議室があらかじめ設けられているため、内装工事の手間を省き、入居後すぐにビジネスを始動できるスピード感も大きな魅力といえます。

執務スペースには家具の設置がされておらず、自社の働き方や業務内容に合わせて、柔軟なレイアウトが可能です。ご関心がございましたら、ぜひお早めにお問い合わせください。

おすすめポイント

  1. 当社貸主物件のため【仲介手数料不要】
  2. 昭和通り沿い1階の視認性の高い立地
  3. 白と木目を基調とした清潔感あふれる内装
  4. 会議室含む内装完備のセットアップオフィス
  5. CASBEE不動産評価認証Sランク取得の高品質ビル
菅野 勇人

営業担当者

菅野 勇人

宅地建物取引士

セットアップオフィスから一般的なオフィスまで、多種多様なオフィスビルの魅力や特徴を熟知したオフィス物件マニア。

スタートアップ企業の移転支援経験が多く、そこで得た知見を活かし、お客様の理想のオフィス探しを全力でサポートいたします。

この物件を問い合わせる
物件概要
物件番号 s-2422
物件名 グランファースト神田紺屋町
所在地 東京都千代田区神田紺屋町15
最寄り駅 JR 神田駅
徒歩5分

東京メトロ銀座線
神田駅 徒歩5分

都営新宿線
岩本町駅 徒歩5分
階数 1階
面積 23.27坪(76.92㎡)
推奨席数 12席
物件タイプ セットアップオフィス
会議室数 6名掛け会議室×1室
竣工年 1993年4月
特徴・設備 # 会議室付き # 男女別トイレ # 2路線利用可 # 最寄り駅から徒歩5分以内
募集条件
月額賃料@坪単価 相談
敷金 / 保証金 相談
償却
礼金
更新料 / 再契約料
入居可能日 2026年6月上旬予定
契約期間 3年
原状回復有無
保証契約

※表示価格は税抜き価格です。

この物件を問い合わせる

物件のお問い合わせフォーム

オフィス物件を探す

キーワード
カテゴリー

Get In Touch!!

希望条件が決まっていなくても、オフィス移転のプロが要件定義からご一緒させていただきます。まずはお気軽にご相談くださいませ。

お電話でのお問い合わせはこちら

03-6858-3030

平日
9:00~18:00