Powered by
ホーム 千代田区の居抜き・セットアップオフィスを探す 【敷金最大0】神保町駅3分!会議室2室付き・2023年竣工の築浅セットアップオフィス

【敷金最大0】神保町駅3分!会議室2室付き・2023年竣工の築浅セットアップオフィス

募集終了
当社貸主物件
仲介手数料無料
エリア:千代田区神田神保町
広さ:60〜80坪
席数:20〜39席
公開日:2025.10.01

物件のご紹介

神保町駅から徒歩3分、神田エリアで理想のオフィスをお探しの企業様におすすめの『mirio神保町 12階』のご紹介です。

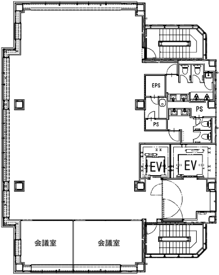
本物件は、2023年8月に竣工したばかりの築浅ビル。約79坪の室内には高さのあるスケルトン天井を採用し、多面に配置された採光性の高い大きな窓により、部屋の奥まで明るく、開放的な空間が広がります。

会議室などの内装が設置されているセットアップオフィスでありながら、室内の柱が少ないため、フリーアドレスや島型配置など、最大44名程度の組織規模に合わせて、自由なレイアウトがしやすい点も魅力です。

敷金は最大0ヶ月での相談が可能。移転コストを抑えつつ、デザイン性の高い空間を求めるスタートアップ・ベンチャー企業様に最適な物件です。

ご関心がございましたら、ぜひお早めにお問い合わせください。

おすすめポイント

  1. 当社貸主物件のため【仲介手数料不要】
  2. 敷金最大0ヶ月で初期コストを大幅削減
  3. スケルトン天井を採用した、開放的でスタイリッシュな空間
  4. 3路線利用可能な神保町駅から、徒歩3分の好アクセス
  5. 2023年竣工の築浅ビル
菅野 勇人

営業担当者

菅野 勇人

宅地建物取引士

セットアップオフィスから一般的なオフィスまで、多種多様なオフィスビルの魅力や特徴を熟知したオフィス物件マニア。

スタートアップ企業の移転支援経験が多く、そこで得た知見を活かし、お客様の理想のオフィス探しを全力でサポートいたします。

この物件を問い合わせる
物件概要
物件番号 s-2427
物件名 mirio神保町
所在地 東京都千代田区神田神保町1-28-1
最寄り駅 東京メトロ半蔵門線
神保町駅 徒歩3分

都営新宿線
神保町駅 徒歩3分

都営三田線
神保町駅 徒歩3分

JR 御茶ノ水駅
徒歩9分

東京メトロ千代田線
新御茶ノ水駅 徒歩9分
階数 12階
面積 79.27坪(262.05㎡)
推奨席数 36~44席
物件タイプ セットアップオフィス
会議室数 会議室×2室
竣工年 2023年8月
特徴・設備 # 敷金無し # 会議室付き # スケルトン天井 # 新築・築浅 # 男女別トイレ # 2路線利用可 # 最寄り駅から徒歩5分以内
募集条件
月額賃料@坪単価 相談
敷金 / 保証金 最大0ヶ月
償却
礼金
更新料 / 再契約料
入居可能日 即日
契約期間 3年(定期借家)
原状回復有無
保証契約

※表示価格は税抜き価格です。

この物件を問い合わせる

物件のお問い合わせフォーム

オフィス物件を探す

キーワード
カテゴリー

Get In Touch!!

希望条件が決まっていなくても、オフィス移転のプロが要件定義からご一緒させていただきます。まずはお気軽にご相談くださいませ。

お電話でのお問い合わせはこちら

03-6858-3030

平日
9:00~18:00