Powered by
ホーム 千代田区の居抜き・セットアップオフィスを探す 水道橋駅徒歩5分!レイアウトの自由度が魅力の、内装付きセットアップオフィス

水道橋駅徒歩5分!レイアウトの自由度が魅力の、内装付きセットアップオフィス

募集中
当社管理物件
エリア:千代田区神田猿楽町
広さ:30〜60坪
席数:10〜19席
公開日:2026.01.23

物件のご紹介

JR水道橋駅から徒歩5分、内装工事不要でスムーズな移転を実現するセットアップオフィス、『TQ神田猿楽町』をご紹介します。

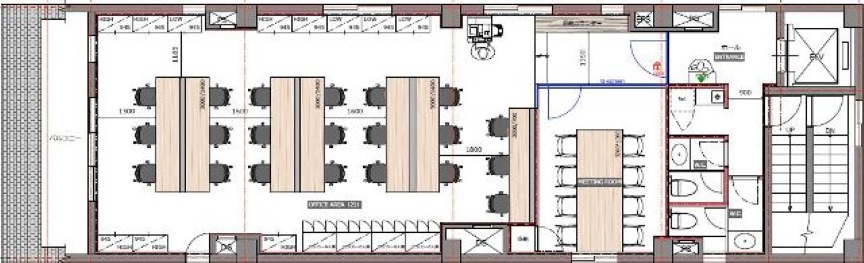
本物件は、18名から20名程度の成長フェーズのスタートアップ・ベンチャー企業様に適した約35坪の空間。

内装は木目と白を基調とした温かみのあるナチュラルモダンなデザインで統一されており、ガラス張りの会議室が空間全体に心地よい抜け感を演出しています。執務エリアには柱などの遮蔽物がなく、デスク配置の自由度が高い点もポイントです。

資料請求や内覧希望の場合は、お気軽にお問い合わせください。

※掲載写真は他フロアを撮影した参考写真です。

おすすめポイント

  1. JR水道橋駅の他、神保町駅・御茶ノ水駅など2駅が利用可能
  2. 内装工事済みのセットアップオフィスで、工事期間を削減
  3. 木目と白を基調としたナチュラルモダンな内装
菅野 勇人

営業担当者

菅野 勇人

宅地建物取引士

セットアップオフィスから一般的なオフィスまで、多種多様なオフィスビルの魅力や特徴を熟知したオフィス物件マニア。

スタートアップ企業の移転支援経験が多く、そこで得た知見を活かし、お客様の理想のオフィス探しを全力でサポートいたします。

この物件を問い合わせる
物件概要
物件番号 s-2434
物件名 TQ神田猿楽町
所在地 東京都千代田区神田猿楽町2-6-8
最寄り駅 JR 水道橋駅
徒歩5分

都営三田線
水道橋駅 徒歩6分

都営新宿線
神保町駅 徒歩7分

JR 御茶ノ水駅
徒歩9分

東京メトロ丸ノ内線
御茶ノ水駅 徒歩10分
階数 5階
面積 35.16坪(116.24㎡)
推奨席数 18~20席
物件タイプ セットアップオフィス
会議室数 8名掛け会議室×1室
竣工年 1985年3月
特徴・設備 # 会議室付き # 男女別トイレ # 2路線利用可 # 最寄り駅から徒歩5分以内
募集条件
月額賃料@坪単価 843,840円(坪24,000円)
敷金 / 保証金 5,063,040円(6ヶ月)
償却
礼金
更新料 / 再契約料
入居可能日 2026年7月1日予定
契約期間 2年
原状回復有無
保証契約

※表示価格は税抜き価格です。

この物件を問い合わせる

物件のお問い合わせフォーム

オフィス物件を探す

キーワード
カテゴリー

Get In Touch!!

希望条件が決まっていなくても、オフィス移転のプロが要件定義からご一緒させていただきます。まずはお気軽にご相談くださいませ。

お電話でのお問い合わせはこちら

03-6858-3030

平日
9:00~18:00