Powered by
ホーム 千代田区の居抜き・セットアップオフィスを探す 小伝馬町駅4分!会議室・テレカンブース各2室、専有ラウンジを備えたセットアップオフィス

小伝馬町駅4分!会議室・テレカンブース各2室、専有ラウンジを備えたセットアップオフィス

募集中
当社貸主物件
仲介手数料無料
エリア:千代田区岩本町
広さ:30〜60坪
席数:20〜39席
公開日:2026.02.16

物件のご紹介

千代田区岩本町エリアで、理想のオフィスをお探しのスタートアップ・ベンチャー企業様におすすめの『THE PORTAL IWAMOTOCHO』のご紹介です。

本物件は、小伝馬町駅から徒歩4分、秋葉原駅や神田駅からも徒歩10分圏内の利便性の高い立地に位置しています。

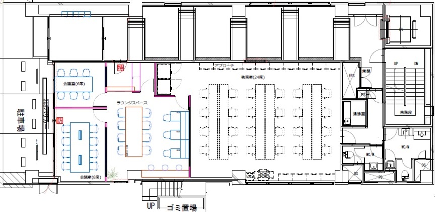
約50坪の室内は、最大24名規模に最適なレイアウト。温かみのある木目調の素材を各所に取り入れた、モダンで洗練されたデザインが特徴です。

内装工事不要のセットアップオフィスとして、一部にスケルトン天井を採用した開放感あふれる執務スペースに加え、会議室2室やテレカンブース2室を完備。さらに、専有部内には、多様なワークスペースを備えたカフェのようなラウンジも設けられており、気分転換やコミュニケーションを深める場としてもご活用可能です。

資料請求や内覧希望の場合は、お気軽にお問い合わせください。

おすすめポイント

  1. 当社貸主物件のため【仲介手数料不要】
  2. 会議室とテレカンブース各2室を備えた、内装工事不要のセットアップオフィス
  3. JRを含む複数駅・路線が利用でき、主要ビジネス街へのアクセスも抜群
菅野 勇人

営業担当者

菅野 勇人

宅地建物取引士

セットアップオフィスから一般的なオフィスまで、多種多様なオフィスビルの魅力や特徴を熟知したオフィス物件マニア。

スタートアップ企業の移転支援経験が多く、そこで得た知見を活かし、お客様の理想のオフィス探しを全力でサポートいたします。

この物件を問い合わせる
物件概要
物件番号 s-2449
物件名 THE PORTAL IWAMOTOCHO
所在地 東京都千代田区岩本町2-8-8
最寄り駅 東京メトロ日比谷線
小伝馬町駅 徒歩4分

都営新宿線
岩本町駅 徒歩5分

東京メトロ日比谷線
秋葉原駅 徒歩7分

JR 神田駅
徒歩8分

東京メトロ銀座線
神田駅 徒歩8分
階数 1階
面積 50.93坪(168.38㎡)
推奨席数 20~24席
物件タイプ セットアップオフィス
会議室数 6名掛け会議室×1室
8名掛け会議室×1室
テレカンブース数 2室
竣工年 1991年9月
特徴・設備 # テレカンブース付き # 会議室付き # 男女別トイレ # スケルトン天井 # 2路線利用可 # 最寄り駅から徒歩5分以内
募集条件
月額賃料@坪単価 1,222,320円(坪24,000円)
敷金 / 保証金 6ヶ月
償却
礼金
更新料 / 再契約料
入居可能日 2026年7月
契約期間 2年
原状回復有無
保証契約

※表示価格は税抜き価格です。

この物件を問い合わせる

物件のお問い合わせフォーム

オフィス物件を探す

キーワード
カテゴリー

Get In Touch!!

希望条件が決まっていなくても、オフィス移転のプロが要件定義からご一緒させていただきます。まずはお気軽にご相談くださいませ。

お電話でのお問い合わせはこちら

03-6858-3030

平日
9:00~18:00