JR秋葉原駅徒歩7分!快適性と機能性を兼ね備えたデザイン・レイアウトが魅力のセットアップオフィス
物件のご紹介
成長フェーズのスタートアップ・ベンチャー企業様におすすめの、デザイン性と機能性を兼ね備えたセットアップオフィス『NOVEL WORK Iwamotocho』をご紹介します。本物件は都営新宿線「岩本町駅」から徒歩3分、複数路線が利用可能なJR「秋葉原駅」へも徒歩7分の好立地です。
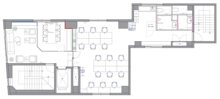
ご紹介の8階区画は約31坪で、15名程度の企業様に最適なレイアウト。レトロな外観とは対照的に、室内はモダンで洗練された空間にデザインされています。
エレベーターを降りて左手のラウンジエリアには、こだわりの内装があらかじめ施されており、内装に合わせて設置された上質なインテリアと相まって、来客に好印象を与える空間を演出しています。
一方、ドアの先に広がる執務エリアは、白とグレーを基調とした清潔感あるシンプルなデザイン。家具・什器の設置がないため、自社のカラーや働き方に合わせて自由にレイアウトが可能です。
執務エリアとラウンジエリアの間の会議室はガラス張りで、ラウンジ側の窓から入る自然光が奥まで届く設計。テレカンブース1室も完備されており、快適性と実用性を両立した環境が魅力です。
資料請求や内覧希望の場合は、お気軽にお問い合わせください。
おすすめポイント
- 当社貸主物件のため【仲介手数料不要】
- 都内各所へのアクセスにも便利な「秋葉原駅」も徒歩圏内
- 上質な内装・家具を備えた専用ラウンジ付のセットアップオフィス
- 執務エリアの奥まで光が差し込む空間設計
営業担当者
菅野 勇人
宅地建物取引士
セットアップオフィスから一般的なオフィスまで、多種多様なオフィスビルの魅力や特徴を熟知したオフィス物件マニア。
スタートアップ企業の移転支援経験が多く、そこで得た知見を活かし、お客様の理想のオフィス探しを全力でサポートいたします。
| 物件番号 | s-2451 |
|---|---|
| 物件名 | NOVEL WORK Iwamotocho |
| 所在地 | 東京都千代田区岩本町3-1-9 |
| 最寄り駅 | 都営新宿線 岩本町駅 徒歩3分 東京メトロ日比谷線 秋葉原駅 徒歩5分 JR 秋葉原駅 徒歩7分 |
| 階数 | 8階 |
| 面積 | 31.78坪(105.07㎡) |
| 推奨席数 | 15席 |
| 物件タイプ | セットアップオフィス |
| 会議室数 | 6名掛け会議室×1室 |
| テレカンブース数 | 1室 |
| 竣工年 | 1989年10月 |
| 特徴・設備 | # テレカンブース付き # 会議室付き # 男女別トイレ # 2路線利用可 # 最寄り駅から徒歩5分以内 |
| 月額賃料@坪単価 | 746,830円 |
|---|---|
| 敷金 / 保証金 | 4ヶ月分 |
| 償却 | 無 |
| 礼金 | 無 |
| 更新料 / 再契約料 | 無 |
| 入居可能日 | 2026年7月予定 |
| 契約期間 | 2年 |
| 原状回復有無 | 有 |
| 保証契約 | 有 |
※表示価格は税抜き価格です。
この物件を問い合わせる