Powered by
ホーム 千代田区の居抜き・セットアップオフィスを探す JR水道橋駅徒歩1分|快適な執務環境が整った、会議室・テレカンブース各2室完備のセットアップオフィス

JR水道橋駅徒歩1分|快適な執務環境が整った、会議室・テレカンブース各2室完備のセットアップオフィス

募集中
当社貸主物件
仲介手数料無料
エリア:千代田区神田三崎町
広さ:30〜60坪
席数:20〜39席
公開日:2026.04.28

物件のご紹介

内装工事不要の効率的な移転をご希望されるスタートアップ・ベンチャー企業様に最適な、『水道橋フロント』のご紹介です。最寄りのJR「水道橋駅」からは徒歩わずか1分。加えて東京メトロ半蔵門線「神保町駅」、東西線「飯田橋駅」も徒歩圏内に位置し、ビジネス拠点として申し分ないアクセス環境を備えています。

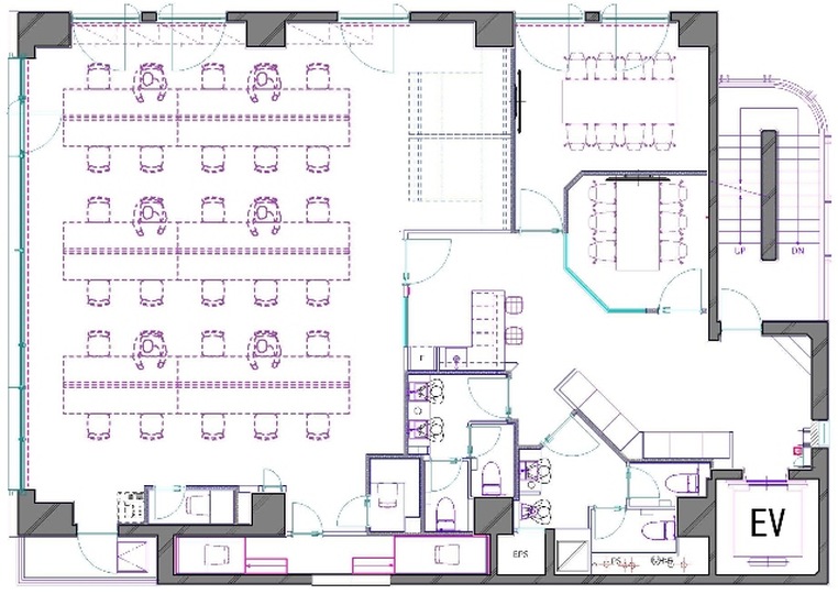
ご紹介の3階区画は約53坪のセットアップオフィスで、最大34席でのご利用が可能です。執務エリアは天井高3,800mmの空間に、大きな窓面から自然光がたっぷりと差し込む開放感のあるデザインが魅力。受付・ファミレス席・カウンター席を配したシックで落ち着いた雰囲気のラウンジスペースのほか、会議室2室とテレカンブース2室があらかじめ備わっているため、内装工事の手間なく、入居後すぐに業務をスタートできる環境が整います。

内装は2023年のリニューアルで清潔感も抜群、さらに、リフレッシュに最適なテナント専用の屋上テラスもご利用可能です。ご関心をお持ちの場合は、ぜひお早めにお問い合わせください。

おすすめポイント

  1. 当社貸主物件のため【仲介手数料不要】
  2. JR水道橋駅西口徒歩1分の好立地
  3. 会議室2室・テレカンブース2室を完備したセットアップオフィス
  4. 専有ラウンジ・屋上テラス付きで多彩なビジネスシーンに対応
  5. 2023年リニューアル済みの清潔感ある内装

同ビル別区画の物件はこちら

菅野 勇人

営業担当者

菅野 勇人

宅地建物取引士

セットアップオフィスから一般的なオフィスまで、多種多様なオフィスビルの魅力や特徴を熟知したオフィス物件マニア。

スタートアップ企業の移転支援経験が多く、そこで得た知見を活かし、お客様の理想のオフィス探しを全力でサポートいたします。

この物件を問い合わせる
物件概要
物件番号 s-2530
物件名 水道橋フロント
所在地 東京都千代田区神田三崎町3-7-1
最寄り駅 JR 水道橋駅
徒歩1分

東京メトロ東西線
飯田橋駅 徒歩9分

東京メトロ半蔵門線
神保町駅 徒歩9分
階数 3階
面積 53.11坪(175.60㎡)
推奨席数 25~34席
物件タイプ セットアップオフィス
会議室数 6名掛け会議室×1室
8名掛け会議室×1室
テレカンブース数 2室
竣工年 1985年4月
特徴・設備 # テレカンブース付き # 会議室付き # 屋上 / テラス有り # 男女別トイレ # 2路線利用可 # 最寄り駅から徒歩5分以内
募集条件
月額賃料@坪単価 1,433,970円(坪27,000円)
敷金 / 保証金 8,603,820円(6ヶ月)
償却
礼金
更新料 / 再契約料
入居可能日 2026年9月下旬予定
契約期間 定期借家契約3年
原状回復有無
保証契約

※表示価格は税抜き価格です。

この物件を問い合わせる

物件のお問い合わせフォーム

オフィス物件を探す

キーワード
カテゴリー

Get In Touch!!

希望条件が決まっていなくても、オフィス移転のプロが要件定義からご一緒させていただきます。まずはお気軽にご相談くださいませ。

お電話でのお問い合わせはこちら

03-6858-3030

平日
9:00~18:00