Powered by
ホーム 中央区の居抜き・セットアップオフィスを探す 茅場町駅徒歩1分!活気ある金融街の新装フルセットアップオフィス

茅場町駅徒歩1分!活気ある金融街の新装フルセットアップオフィス

募集終了
当社管理物件
エリア:中央区日本橋茅場町
広さ:〜30坪
席数:10〜19席
公開日:2024.11.26

物件のご紹介

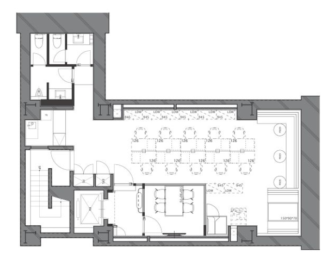
『NOVEL WORK 日本橋茅場町』は東京メトロ日比谷線・東西線「茅場町駅」から徒歩わずか1分、金融街ならではの活気あるエリアに位置する、内装・家具付きのフルセットアップオフィスです。
本物件は2025年1月にエントランスと共用部をリニューアル、2025年4月には内装のセットアップ工事が完了しております。

木目調の温かい雰囲気が印象的な貸室内は、10席の家具付き執務スペースに、4名掛け会議室とテレカンブースを各1室セットアップ済み。Wi-Fiも完備されており、入居後のスムーズな事業運営をサポートする、快適なワークスペースを提供いたします。

退去時の原状回復も不要なので、入退去に関わるコストをしっかりと抑えられる、スタートアップ企業様には嬉しいコストパフォーマンスの高い物件となっております。是非お早めにお問い合わせください。

おすすめポイント

  1. 原状回復不要で退去時のコストを大幅に抑えられる
  2. 内装・家具・Wi-Fi完備のフルセットアップオフィスで、即日業務を開始できる
  3. 気分転換に最適なカフェスペースやファミレスブースも完備
  4. 25年4月にセットアップ工事完了の新しく快適なオフィス空間
菅野 勇人

営業担当者

菅野 勇人

宅地建物取引士

セットアップオフィスから一般的なオフィスまで、多種多様なオフィスビルの魅力や特徴を熟知したオフィス物件マニア。

スタートアップ企業の移転支援経験が多く、そこで得た知見を活かし、お客様の理想のオフィス探しを全力でサポートいたします。

この物件を問い合わせる
物件概要
物件番号 fs-3041
物件名 KYOE PLAZA KAYABACHO Ⅱ
所在地 東京都中央区日本橋茅場町1-11-9
最寄り駅 東京メトロ日比谷線
茅場町駅 徒歩1分

東京メトロ銀座線
日本橋駅 徒歩4分

都営浅草線
日本橋駅 徒歩4分
階数 B1F
面積 27.77坪 (91.81m²)
推奨席数 10席
物件タイプ フルセットアップオフィス
会議室数 4名掛け会議室×1
テレカンブース数 1室
竣工年 1985年4月
特徴・設備 # 原状回復免除 # 家具・什器付き # テレカンブース付き # 会議室付き # Wi-Fi完備 # 男女別トイレ # 2路線利用可 # 最寄り駅から徒歩5分以内 # 敷金無し
募集条件
月額賃料@坪単価 527,630円(坪19,000円)
敷金 / 保証金 最大0ヶ月
償却
礼金
更新料 / 再契約料
入居可能日 即日
契約期間 2年 (1年以内での解約不可)
原状回復有無
保証契約

※表示価格は税抜き価格です。

この物件を問い合わせる

物件のお問い合わせフォーム

オフィス物件を探す

キーワード
カテゴリー

Get In Touch!!

希望条件が決まっていなくても、オフィス移転のプロが要件定義からご一緒させていただきます。まずはお気軽にご相談くださいませ。

お電話でのお問い合わせはこちら

03-6858-3030

平日
9:00~18:00