Powered by
ホーム 中央区の居抜き・セットアップオフィスを探す 茅場町駅徒歩5分!仲介手数料、原状回復不要のフルセットアップオフィス

茅場町駅徒歩5分!仲介手数料、原状回復不要のフルセットアップオフィス

募集終了
当社貸主物件
仲介手数料無料
エリア:中央区日本橋小網町
広さ:〜30坪
席数:10〜19席
公開日:2025.09.01

物件のご紹介

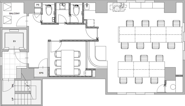
東京メトロ「茅場町駅」「水天宮前駅」「人形町駅」いずれも徒歩5分で利用可能な『Biz Feel 茅場町』は、2024年1月竣工の築浅フルセットアップオフィスです。日本橋・八丁堀・京橋など、主要ビジネスエリアも近く、東京都内の他エリアや近郊都市からも通勤しやすいアクセスの良さが魅力。周辺には老舗の飲食店も多く、ランチや会食利用での利便性も高いエリアです。

オフィスの内装には白を基調としたデザインに木材を多く取り入れており、ナチュラルで落ち着いた雰囲気。集中しやすい業務環境が整っています。1階には入居者専用のラウンジも備え、リラックススペースや打ち合わせスペースとして、多様なシーンに合わせてメリハリをつけて働くことができます。

仲介手数料不要で原状回復義務なし(※現状変更した場合や破損等は除く)、「敷金0」も相談可能となっており、 入退去時のコストを大幅削減可能。フルセットアップで工事期間も短縮できるため、資金繰りやスピード感を重視されるスタートアップ企業様にぜひおすすめしたい物件です。

人気物件となりますので、ご関心をお持ちの場合は、お早目にお問い合わせください。

おすすめのポイント

  1. 当社貸主物件のため仲介手数料不要
  2. 内装・家具完備で、トータルコストを抑えられるフルセットアップオフィス
  3. 3路線徒歩5分圏内のアクセス抜群の環境
  4. 木材を使用した温かみのあるオフィスデザイン
  5. 入居企業同士のコミュニケーションが自然と生まれる入居者専用ラウンジ
菅野 勇人

営業担当者

菅野 勇人

宅地建物取引士

セットアップオフィスから一般的なオフィスまで、多種多様なオフィスビルの魅力や特徴を熟知したオフィス物件マニア。

スタートアップ企業の移転支援経験が多く、そこで得た知見を活かし、お客様の理想のオフィス探しを全力でサポートいたします。

この物件を問い合わせる
物件概要
物件番号 fs-3050
物件名 Biz Feel 茅場町
所在地 東京都中央区日本橋小網町11-4
最寄り駅 東京メトロ半蔵門線
水天宮前駅 徒歩5分

東京メトロ日比谷線
人形町駅 徒歩5分

東京メトロ東西線
茅場町駅 徒歩5分
階数 2階
面積 28.54坪 (94.35m²)
推奨席数 14席
物件タイプ フルセットアップオフィス
会議室数 6名掛け会議室×1
テレカンブース数 1室
竣工年 2024年1月
特徴・設備 # 敷金無し # 原状回復免除 # 家具・什器付き # テレカンブース付き # 会議室付き # Wi-Fi完備 # 共有ラウンジ有り # 屋上 / テラス有り # 男女別トイレ # 新築・築浅 # 2路線利用可 # 最寄り駅から徒歩5分以内
募集条件
月額賃料@坪単価 770,000円
敷金 / 保証金 最大0ヶ月
償却
礼金
更新料 / 再契約料
入居可能日 即日
契約期間 2年 (1年以内での解約不可)
原状回復有無
保証契約

※表示価格は税抜き価格です。

この物件を問い合わせる

物件のお問い合わせフォーム

オフィス物件を探す

キーワード
カテゴリー

Get In Touch!!

希望条件が決まっていなくても、オフィス移転のプロが要件定義からご一緒させていただきます。まずはお気軽にご相談くださいませ。

お電話でのお問い合わせはこちら

03-6858-3030

平日
9:00~18:00