Powered by
ホーム 中央区の居抜き・セットアップオフィスを探す 馬喰町駅徒歩2分!初期費用大幅削減の小規模フルセットアップオフィス

馬喰町駅徒歩2分!初期費用大幅削減の小規模フルセットアップオフィス

募集終了
当社貸主物件
仲介手数料無料
エリア:中央区東日本橋
広さ:〜30坪
席数:10〜19席
公開日:2025.10.01

物件のご紹介

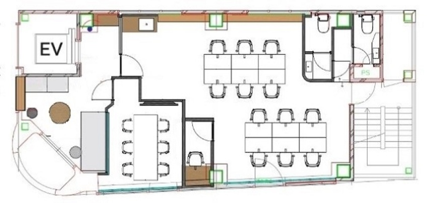
江戸情緒が残る問屋街とモダンな店舗が融合する街、「東日本橋」の京葉道路沿い角地に位置する『LIT』は、敷金不要(※1)、原状回復費用不要(※2)で初期費用を大幅に抑え、スタートアップ企業の成長を後押しする、コストパフォーマンスに優れた小規模フルセットアップオフィスです。

JR総武線「馬喰町駅」徒歩2分、都営浅草線「東日本橋駅」徒歩4分と、複数路線の利用が可能。東京駅や羽田空港へのアクセスもスムーズなため、国内外、様々なエリアのクライアントやパートナーとのビジネスを行うにあたって、高い利便性を発揮します。

小規模オフィスでありながら、最大6名収容のホワイトボード付き会議室、オンライン会議対応の個室ブースを完備し、デスクにチェア、Wi-Fiまで完備のフルセットアップ仕様のため、入居後すぐに業務を開始できるのも大きなメリットです。

エレベーターを降りてすぐのエリアには、バルコニー付きのラウンジスペースもあり、リフレッシュもしやすい環境が整っています。効率的で快適な環境への移転を希望するスタートアップ企業様に人気のこちらの物件。詳しい資料や内覧希望については、ぜひお気軽にお問い合わせください。

※1:与信状況によって預託をお願いする場合がございます。
※2:現状変更した場合や破損等を除きます。また、契約時にクリーニング費用を別途お支払いいただきます。

おすすめのポイント

  1. 弊社貸主物件のため【仲介手数料不要】
  2. 初期費用を大幅削減できる、コストパフォーマンス抜群のフルセットアップオフィス
  3. 東京駅や羽田空港へのアクセスにも便利
  4. 小規模ながら、会議室・個室ブース付きでフレキシブルな働き方を実現
  5. 即日入居可能、Wi-Fi完備ですぐにビジネスを開始できる

同一ビル内の他のオフィス

菅野 勇人

営業担当者

菅野 勇人

宅地建物取引士

セットアップオフィスから一般的なオフィスまで、多種多様なオフィスビルの魅力や特徴を熟知したオフィス物件マニア。

スタートアップ企業の移転支援経験が多く、そこで得た知見を活かし、お客様の理想のオフィス探しを全力でサポートいたします。

この物件を問い合わせる
物件概要
物件番号 fs-3054
物件名 LIT
所在地 東京都中央区東日本橋2-24-9
最寄り駅 JR 馬喰町駅
徒歩2分

都営浅草線
東日本橋駅 徒歩4分

都営新宿線
馬喰横山駅 徒歩6分
階数 5階
面積 22.53坪 (74.48m²)
推奨席数 12席
物件タイプ フルセットアップオフィス
会議室数 6名掛け会議室×1
テレカンブース数 1室
竣工年 1987年4月
特徴・設備 # 敷金無し # 原状回復免除 # 家具・什器付き # テレカンブース付き # 会議室付き # Wi-Fi完備 # 屋上 / テラス有り # 男女別トイレ # リノベーション済み # 2路線利用可 # 最寄り駅から徒歩5分以内
募集条件
月額賃料@坪単価 540,720円(坪24,000円)
敷金 / 保証金 最大0ヶ月
償却
礼金
更新料 / 再契約料
入居可能日 2026年4月頃
契約期間 2年 (1年以内での解約不可)
原状回復有無
保証契約

※表示価格は税抜き価格です。

この物件を問い合わせる

物件のお問い合わせフォーム

オフィス物件を探す

キーワード
カテゴリー

Get In Touch!!

希望条件が決まっていなくても、オフィス移転のプロが要件定義からご一緒させていただきます。まずはお気軽にご相談くださいませ。

お電話でのお問い合わせはこちら

03-6858-3030

平日
9:00~18:00