Powered by
ホーム 中央区の居抜き・セットアップオフィスを探す 【敷金0・原状回復無】京橋エリアのWi-Fi付フルセットアップオフィス

【敷金0・原状回復無】京橋エリアのWi-Fi付フルセットアップオフィス

募集終了
当社貸主物件
仲介手数料無料
エリア:中央区
広さ:〜30坪
席数:10席未満
公開日:2024.11.26

物件のご紹介

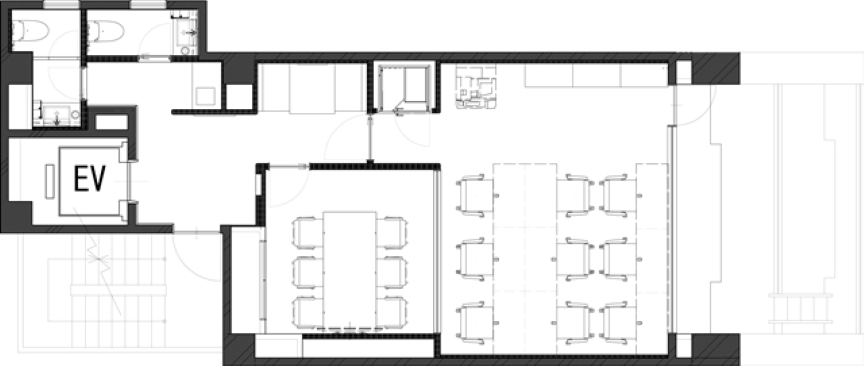
『Biz Feel Kyobashi』は、都営浅草線「宝町駅」から徒歩わずか1分、東京メトロ銀座線「京橋駅」からも徒歩3分の好立地にある、都内屈指のビジネス街「京橋エリア」の内装・什器付き、Wi-Fi完備のフルセットアップオフィスです。

本物件は2025年6月中旬よりご入居可能(予定)で、9席を想定した小規模スタートアップ向けの執務スペースに加え、6名用会議室1室とテレカンブース1室を標準装備。Wi-Fiも完備しており、スタートアップのスムーズなオフィス移転をサポートします。

特に魅力的なのは、【敷金0・原状回復不要】という点。加えて礼金・償却・更新料もかからないため、オフィス移転にかかる初期費用および退去時のコストを大幅に削減できます。

人気の「京橋エリア」で、コストパフォーマンスに優れたコンパクトオフィスをお探しの企業様に最適な物件です。ご検討の場合は、ぜひお早めにお問い合わせください。

おすすめポイント

  1. 当社貸主物件のため仲介手数料不要
  2. 【敷金0・原状回復不要】で、移転コストを大幅削減
  3. 内装工事済み、家具什器・Wi-Fiまで完備のフルセットアップオフィス
  4. 浅草線「宝町駅」徒歩1分、銀座線「京橋駅」含む3路線利用可能な好立地

菅野 勇人

営業担当者

菅野 勇人

宅地建物取引士

セットアップオフィスから一般的なオフィスまで、多種多様なオフィスビルの魅力や特徴を熟知したオフィス物件マニア。

スタートアップ企業の移転支援経験が多く、そこで得た知見を活かし、お客様の理想のオフィス探しを全力でサポートいたします。

この物件を問い合わせる
物件概要
物件番号 fs-3206
物件名 Biz Feel Kyobashi
所在地 東京都中央区京橋2-11-7
最寄り駅 都営浅草線
宝町駅 徒歩1分

東京メトロ銀座線
京橋駅 徒歩3分

東京メトロ有楽町線
銀座一丁目駅 徒歩6分
階数 5階
面積 18.56坪(61.37㎡)
推奨席数 9席
物件タイプ フルセットアップオフィス
会議室数 6名掛け会議室×1室
テレカンブース数 1室
竣工年 1987年4月
特徴・設備 # 敷金無し # 原状回復免除 # 家具・什器付き # テレカンブース付き # 会議室付き # Wi-Fi完備 # 男女別トイレ # 2路線利用可 # 最寄り駅から徒歩5分以内
募集条件
月額賃料@坪単価 649,600円(坪35,000円)
敷金 / 保証金
償却
礼金
更新料 / 再契約料
入居可能日 2025年6月中旬予定
契約期間 2年 (1年以内での解約不可)
原状回復有無
保証契約

※表示価格は税抜き価格です。

この物件を問い合わせる

物件のお問い合わせフォーム

オフィス物件を探す

キーワード
カテゴリー

Get In Touch!!

希望条件が決まっていなくても、オフィス移転のプロが要件定義からご一緒させていただきます。まずはお気軽にご相談くださいませ。

お電話でのお問い合わせはこちら

03-6858-3030

平日
9:00~18:00