Powered by
ホーム 中央区の居抜き・セットアップオフィスを探す 【原状回復不要】東京駅徒歩圏内!内装・Wi-Fi完備のフルセットアップオフィス

【原状回復不要】東京駅徒歩圏内!内装・Wi-Fi完備のフルセットアップオフィス

募集終了
当社貸主物件
仲介手数料無料
エリア:中央区京橋
広さ:〜30坪
席数:10〜19席
公開日:2024.11.26

物件のご紹介

「東京駅」に隣接する都内屈指のビジネスエリア「京橋」に、スタートアップ企業様の更なる躍進をサポートする、内装・家具付き、Wi-Fi完備のフルセットアップオフィスが登場しました。

最大の魅力の一つは、都営浅草線「宝町駅」出口からわずか徒歩1分、さらに銀座線「京橋駅」も徒歩3分という卓越したロケーション。「東京駅」も徒歩圏内のため、クライアントの開拓や商談対応にも最適の環境です。

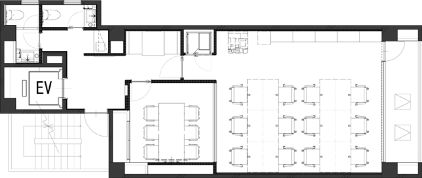
12席規模の執務スペースは、すぐに業務を開始できるよう内装・什器が整えられたフルセットアップ仕様。コンパクトながら、ゆとりある6名掛けの会議室1室と、オンラインミーティングに不可欠なテレカンブースも1室完備しています。
Wi-Fi設備、個別空調、OAフロアはもちろん、3,000mmの開放的な天井高が、快適なワークスペースを実現します。

【原状回復不要】のため、退去時のコストを削減し、貴重な資金を事業成長へと振り向けることが可能です。機能性とコストパフォーマンスを高いレベルで両立させた本物件、詳細情報についてはぜひお気軽にお問い合わせください。

おすすめポイント

  1. 当社貸主物件のため仲介手数料不要
  2. 【原状回復不要】で退去時の負担を軽減
  3. 「宝町駅」徒歩1分、東京駅も徒歩圏内の抜群の立地
  4. Wi-Fiで即日業務開始可能なフルセットアップオフィス
  5. 天井高3,000mmの解放感を感じる空間で、快適なオフィスワークを実現

菅野 勇人

営業担当者

菅野 勇人

宅地建物取引士

セットアップオフィスから一般的なオフィスまで、多種多様なオフィスビルの魅力や特徴を熟知したオフィス物件マニア。

スタートアップ企業の移転支援経験が多く、そこで得た知見を活かし、お客様の理想のオフィス探しを全力でサポートいたします。

この物件を問い合わせる
物件概要
物件番号 fs-3207
物件名 Biz Feel Kyobashi
所在地 東京都中央区京橋2-11-7
最寄り駅 都営浅草線
宝町駅 徒歩1分

東京メトロ銀座線
京橋駅 徒歩3分

東京メトロ有楽町線
銀座一丁目駅 徒歩6分
階数 4階
面積 22.31坪(73.76㎡)
推奨席数 12席
物件タイプ フルセットアップオフィス
会議室数 6名掛け会議室×1室
テレカンブース数 1室
竣工年 1987年4月
特徴・設備 # 敷金無し # 原状回復免除 # 家具・什器付き # テレカンブース付き # 会議室付き # Wi-Fi完備 # 男女別トイレ # 2路線利用可 # 最寄り駅から徒歩5分以内
募集条件
月額賃料@坪単価 780,850円(坪35,000円)
敷金 / 保証金 最大0ヶ月
償却
礼金
更新料 / 再契約料
入居可能日 2025年6月中旬以降
契約期間 2年 (1年以内での解約不可)
原状回復有無
保証契約

※表示価格は税抜き価格です。

この物件を問い合わせる

物件のお問い合わせフォーム

オフィス物件を探す

キーワード
カテゴリー

Get In Touch!!

希望条件が決まっていなくても、オフィス移転のプロが要件定義からご一緒させていただきます。まずはお気軽にご相談くださいませ。

お電話でのお問い合わせはこちら

03-6858-3030

平日
9:00~18:00