Powered by
ホーム 中央区の居抜き・セットアップオフィスを探す 【敷金最大0】人形町駅徒歩5分、広々としたテラス付きのフルセットアップオフィス

【敷金最大0】人形町駅徒歩5分、広々としたテラス付きのフルセットアップオフィス

募集終了
当社管理物件
エリア:中央区日本橋富沢町
広さ:〜30坪
席数:10〜19席
公開日:2025.09.01

物件のご紹介

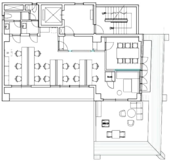
落ち着いた雰囲気で人気が高い中央区日本橋エリアに、2026年1月から入居開始のフルセットアップオフィス『R.core日本橋人形町ビル』が登場しました。

室内は27.47坪(推奨14席)とコンパクトながら、6名掛け会議室1室と、集中作業に欠かせないテレカンブース1室をしっかり完備。都内では貴重な、リフレッシュにも最適な広々としたテラスも利用できます。内装に加えて、家具・什器まで標準装備されている物件のため、スピード感を求めるスタートアップの移転にも最適です。

さらに、「敷金最大0ヶ月」という条件面も大きな魅力で、移転にかかる手間だけでなく費用も大幅に削減できる、コストメリットの非常に高い物件となっています。

資料請求については、ぜひお気軽にお問い合わせください。

おすすめポイント

  1. 家具什器付きでスムーズな移転を実現するフルセットアップオフィス
  2. 会議室・テレカンブース・広々としたテラスまで備えた充実の内装設備
  3. 敷金最大0ヶ月で、初期費用を大幅に削減
  4. 3駅3路線が徒歩5分圏内の好アクセス
菅野 勇人

営業担当者

菅野 勇人

宅地建物取引士

セットアップオフィスから一般的なオフィスまで、多種多様なオフィスビルの魅力や特徴を熟知したオフィス物件マニア。

スタートアップ企業の移転支援経験が多く、そこで得た知見を活かし、お客様の理想のオフィス探しを全力でサポートいたします。

この物件を問い合わせる
物件概要
物件番号 fs-3360
物件名 R.core日本橋人形町ビル
所在地 東京都中央区日本橋富沢町7-13
最寄り駅 東京メトロ日比谷線
人形町駅 徒歩5分

都営新宿線
馬喰横山駅 徒歩5分

都営浅草線
東日本橋駅 徒歩5分
階数 8階
面積 27.47坪(90.81㎡)
推奨席数 14席
物件タイプ フルセットアップオフィス
会議室数 6名掛け会議室×1室
テレカンブース数 1室
竣工年 1986年3月
特徴・設備 # 敷金無し # 家具・什器付き # テレカンブース付き # 会議室付き # 男女別トイレ # 屋上 / テラス有り # 2路線利用可 # 最寄り駅から徒歩5分以内
募集条件
月額賃料@坪単価 659,280円(坪24,000円)
敷金 / 保証金 最大0ヶ月
償却
礼金
更新料 / 再契約料
入居可能日 2026年1月上旬予定
契約期間 2年
原状回復有無
保証契約

※表示価格は税抜き価格です。

この物件を問い合わせる

物件のお問い合わせフォーム

オフィス物件を探す

キーワード
カテゴリー

Get In Touch!!

希望条件が決まっていなくても、オフィス移転のプロが要件定義からご一緒させていただきます。まずはお気軽にご相談くださいませ。

お電話でのお問い合わせはこちら

03-6858-3030

平日
9:00~18:00