Powered by
ホーム 中央区の居抜き・セットアップオフィスを探す 人形町駅徒歩6分!開放的で洗練されたデザインが魅力のフルセットアップオフィス

人形町駅徒歩6分!開放的で洗練されたデザインが魅力のフルセットアップオフィス

募集中
当社貸主物件
仲介手数料無料
エリア:中央区日本橋久松町
広さ:30〜60坪
席数:20〜39席
公開日:2026.03.12

物件のご紹介

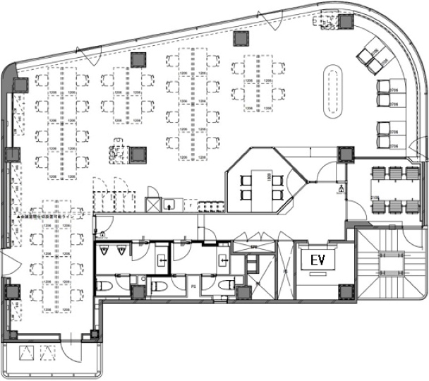
日本橋エリアで、理想のオフィスをお探しのスタートアップ企業様におすすめの『THE CROSS日本橋人形町』のご紹介です。

本物件は2023年にリニューアルされたばかりのフルセットアップオフィスで、家具什器付きのため、入居後すぐに事業を開始できるのが大きなメリット。

室内は余計な仕切りを排した開放的な間取りが特徴で、無駄のない、シンプルかつスタイリッシュな内装が、洗練された空間を演出しています。4名・6名用の会議室とテレカンブース2室に加え、ソファを備えたラウンジエリアも完備しており、ランチや軽い打ち合わせなど、多様なビジネスシーンをサポートします。

都営新宿線「馬喰横山」駅をはじめ、「東日本橋」駅や「人形町」駅などの複数駅が徒歩圏内と、アクセス環境も申し分ありません。資料請求や内覧希望の場合は、ぜひお気軽にお問い合わせください。

おすすめポイント

  1. 当社貸主物件のため【仲介手数料不要】
  2. 家具・什器付きで移転の手間を削減できるフルセットアップオフィス
  3. ゆとりあるラウンジエリアも完備した、充実のワークスペース
菅野 勇人

営業担当者

菅野 勇人

宅地建物取引士

セットアップオフィスから一般的なオフィスまで、多種多様なオフィスビルの魅力や特徴を熟知したオフィス物件マニア。

スタートアップ企業の移転支援経験が多く、そこで得た知見を活かし、お客様の理想のオフィス探しを全力でサポートいたします。

この物件を問い合わせる
物件概要
物件番号 fs-3382
物件名 THE CROSS日本橋人形町
所在地 東京都中央区日本橋久松町10-6
最寄り駅 都営新宿線
馬喰横山駅 徒歩3分

都営浅草線
東日本橋駅 徒歩3分

東京メトロ日比谷線
人形町駅 徒歩6分
階数 5階
面積 60.95坪(201.50㎡)
推奨席数 28席
物件タイプ フルセットアップオフィス
会議室数 4名掛け会議室×1室
6名掛け会議室×1室
テレカンブース数 2室
竣工年 1988年10月
特徴・設備 # 家具・什器付き # テレカンブース付き # 会議室付き # 男女別トイレ # 2路線利用可 # 最寄り駅から徒歩5分以内
募集条件
月額賃料@坪単価 1,401,850円(坪23,000円)
敷金 / 保証金 1,401,850円(2ヶ月分)
償却
礼金
更新料 / 再契約料
入居可能日 2026年6月上旬予定
契約期間 2年
原状回復有無
保証契約

※表示価格は税抜き価格です。

この物件を問い合わせる

物件のお問い合わせフォーム

オフィス物件を探す

キーワード
カテゴリー

Get In Touch!!

希望条件が決まっていなくても、オフィス移転のプロが要件定義からご一緒させていただきます。まずはお気軽にご相談くださいませ。

お電話でのお問い合わせはこちら

03-6858-3030

平日
9:00~18:00