Powered by
ホーム 中央区の居抜き・セットアップオフィスを探す 東日本橋駅徒歩3分!専用ラウンジ付き、デザイン性・機能性を両立したフルセットアップオフィス

東日本橋駅徒歩3分!専用ラウンジ付き、デザイン性・機能性を両立したフルセットアップオフィス

募集中
当社貸主物件
仲介手数料無料
エリア:中央区日本橋久松町
広さ:60〜80坪
席数:20〜39席
公開日:2026.03.12

物件のご紹介

都営浅草線「東日本橋駅」・都営新宿線「馬喰横山駅」から徒歩3分の立地にある『THE CROSS日本橋人形町』のご紹介です。

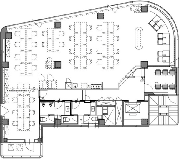
今回ご紹介する3階区画は、大きな窓から自然光がたっぷりと差し込む、約60坪の家具付きフルセットアップオフィス。配管を見せた高さのあるスケルトン天井を採用しており、明るく開放的で、スタイリッシュな空間デザインが魅力です。

室内には28席の家具付き執務スペースに加え、会議室1室とテレカンブース2室を完備しています。間仕切りを設置することで一部を会議スペースとしてレイアウト変更でき、企業のフェーズに合わせ、空間の使い分けをしやすい造りになっています。

さらに、カウンターやソファ席を備えた専用のラウンジスペースもご用意。1階にはコンビニが入居しており、ランチや社内懇親会での利用もしやすい環境です。

デザイン性と機能性を兼ね備えた本物件。ご関心がございましたら、ぜひお早めにお問い合わせください。

おすすめポイント

  1. 当社貸主物件のため【仲介手数料不要】
  2. 会議室にテレカンブース、便利な専用ラウンジまで完備のフルセットアップオフィス
  3. 高さのあるスケルトン天井と豊かな自然光が魅力の、開放感あふれる空間

同ビル別フロアの物件はこちら

菅野 勇人

営業担当者

菅野 勇人

宅地建物取引士

セットアップオフィスから一般的なオフィスまで、多種多様なオフィスビルの魅力や特徴を熟知したオフィス物件マニア。

スタートアップ企業の移転支援経験が多く、そこで得た知見を活かし、お客様の理想のオフィス探しを全力でサポートいたします。

この物件を問い合わせる
物件概要
物件番号 fs-3411
物件名 THE CROSS日本橋人形町
所在地 東京都中央区日本橋久松町10-6
最寄り駅 都営新宿線
馬喰横山駅 徒歩3分

都営浅草線
東日本橋駅 徒歩3分

都営新宿線
浜町駅 徒歩4分

東京メトロ日比谷線
人形町駅 徒歩6分

JR 馬喰町駅
徒歩7分
階数 3階
面積 60.95坪(201.50㎡)
推奨席数 28席
物件タイプ フルセットアップオフィス
会議室数 6名掛け会議室×2室
(1室は間仕切り設置時)
テレカンブース数 2室
竣工年 1988年10月
特徴・設備 # 家具・什器付き # テレカンブース付き # 会議室付き # スケルトン天井 # 男女別トイレ # 2路線利用可 # 最寄り駅から徒歩5分以内
募集条件
月額賃料@坪単価 1,340,900円(坪22,000円)
敷金 / 保証金 1,401,850円(2ヶ月)
償却
礼金
更新料 / 再契約料
入居可能日 2026年6月中旬予定
契約期間 2年
原状回復有無
保証契約

※表示価格は税抜き価格です。

この物件を問い合わせる

物件のお問い合わせフォーム

オフィス物件を探す

キーワード
カテゴリー

Get In Touch!!

希望条件が決まっていなくても、オフィス移転のプロが要件定義からご一緒させていただきます。まずはお気軽にご相談くださいませ。

お電話でのお問い合わせはこちら

03-6858-3030

平日
9:00~18:00