Powered by
ホーム 中央区の居抜き・セットアップオフィスを探す 八丁堀駅徒歩1分!会議スペース充実、モダンな内装の家具付きフルセットアップオフィス

八丁堀駅徒歩1分!会議スペース充実、モダンな内装の家具付きフルセットアップオフィス

募集中
当社貸主物件
仲介手数料無料
エリア:中央区八丁堀
広さ:30〜60坪
席数:10〜19席
公開日:2026.01.26

物件のご紹介

八丁堀駅近くに2026年4月誕生予定、内装・家具付きでスタートアップ・ベンチャー企業様からも人気の高まるフルセットアップオフィス、『八丁堀ファーストスクエア 6階』をご紹介します。

本ビルはJR線と日比谷線が利用可能な八丁堀駅から徒歩わずか1分、さらに徒歩10分圏内で他3駅が利用できる交通利便性に優れた立地です。鍛冶橋通り沿いに面しており、ご来客時の案内もしやすい視認性の高さも魅力です。

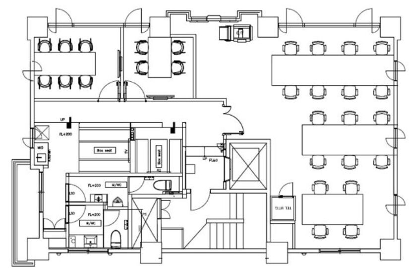
ご紹介の6階区画は約34坪、最大18名程度でのご利用を想定したレイアウトとなっています。内装はグレーとホワイトを基調とした空間で、ブラックフレームや木目調の装飾を随所に施し、都会的でモダンなデザインに生まれ変わる予定です。

内装付きオフィスとして、会議室2室とテレカンブース1室、ファミレス席も2か所完備予定。コンパクトな空間ながらもミーティングスペースを十分に確保することで、会議室不足になりにくい、機能的なワークスペースを提供します。

2026年4月の工事完了後、お問い合わせが増えることも予想されます。資料請求については、お早めにお問い合わせください。

※掲載写真は他フロアを撮影した参考写真です。

おすすめポイント

  1. 当社貸主物件のため【仲介手数料不要】
  2. 八丁堀駅徒歩1分、5駅複数路線が利用可能な好アクセス
  3. コンパクトながら充実の会議スペースを完備
  4. 内装に加え、家具まで備えられたフルセットアップオフィス
菅野 勇人

営業担当者

菅野 勇人

宅地建物取引士

セットアップオフィスから一般的なオフィスまで、多種多様なオフィスビルの魅力や特徴を熟知したオフィス物件マニア。

スタートアップ企業の移転支援経験が多く、そこで得た知見を活かし、お客様の理想のオフィス探しを全力でサポートいたします。

この物件を問い合わせる
物件概要
物件番号 fs-3439
物件名 八丁堀ファーストスクエア
所在地 東京都中央区八丁堀4-8-1
最寄り駅 JR 八丁堀駅
徒歩1分

東京メトロ日比谷線
八丁堀駅 徒歩1分

都営浅草線
宝町駅 徒歩5分

東京メトロ有楽町線
新富町駅 徒歩7分

東京メトロ日比谷線
茅場町駅 徒歩8分
階数 6階
面積 34.04坪(112.54㎡)
推奨席数 18席
物件タイプ フルセットアップオフィス
会議室数 4名掛け会議室×1室
6名掛け会議室×1室
テレカンブース数 1室
竣工年 1986年4月
特徴・設備 # 家具・什器付き # テレカンブース付き # 会議室付き # 男女別トイレ # 2路線利用可 # 最寄り駅から徒歩5分以内
募集条件
月額賃料@坪単価 900,000円
敷金 / 保証金 4,500,000円(5ヶ月)
償却
礼金
更新料 / 再契約料 新賃料の1ヶ月分
入居可能日 2026年4月下旬予定
契約期間 年相談(定借)
原状回復有無
保証契約

※表示価格は税抜き価格です。

この物件を問い合わせる

物件のお問い合わせフォーム

オフィス物件を探す

キーワード
カテゴリー

Get In Touch!!

希望条件が決まっていなくても、オフィス移転のプロが要件定義からご一緒させていただきます。まずはお気軽にご相談くださいませ。

お電話でのお問い合わせはこちら

03-6858-3030

平日
9:00~18:00