Powered by
ホーム 中央区の居抜き・セットアップオフィスを探す 人形町駅徒歩4分!コンパクトながら会議室・テレカンブースを各1室完備したフルセットアップオフィス

人形町駅徒歩4分!コンパクトながら会議室・テレカンブースを各1室完備したフルセットアップオフィス

募集中
当社貸主物件
仲介手数料無料
エリア:中央区日本橋人形町
広さ:〜30坪
席数:10〜19席
公開日:2026.03.23

物件のご紹介

都心ながら落ち着いた雰囲気の漂う日本橋人形町エリアに、フルセットアップオフィス『THE PORTAL Ningyocho』が新たに誕生します。東京メトロ日比谷線・都営浅草線の人形町駅から徒歩4分の距離に位置し、周辺には飲食店も豊富なため、ランチや会食利用にも便利な立地です。

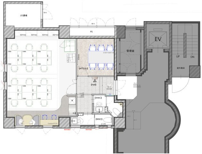
ご紹介の区画は2026年7月に内装のセットアップ工事が完了予定で、ナチュラルな木の質感をベースに、優しい配色の素材と現代的なディテールが融合した内装に生まれ変わります。最大12席想定のコンパクトな空間ながら、会議室1室とテレカンブース1室を完備。デスクや什器もすべて備え付けのため、入居後すぐに業務をスタートできる環境が魅力です。

2026年5月には外観・エントランスのリニューアルも先行して完了する予定で、貸室内だけでなくビル全体の印象も一新され、お客様を迎えるのにも最適な環境が整います。

少人数でのオフィス移転や新規拠点の開設を検討中のスタートアップ・ベンチャー企業様に最適な一室です。ぜひお早めにお問い合わせください。

おすすめポイント

  1. 当社貸主物件のため【仲介手数料不要】
  2. 人形町駅徒歩4分、落ち着いた雰囲気の周辺環境
  3. コンパクトながら会議室・テレカンブース完備のフルセットアップオフィス
  4. 内装に加え、外観・エントランスもリニューアル予定
菅野 勇人

営業担当者

菅野 勇人

宅地建物取引士

セットアップオフィスから一般的なオフィスまで、多種多様なオフィスビルの魅力や特徴を熟知したオフィス物件マニア。

スタートアップ企業の移転支援経験が多く、そこで得た知見を活かし、お客様の理想のオフィス探しを全力でサポートいたします。

この物件を問い合わせる
物件概要
物件番号 fs-3493
物件名 THE PORTAL Ningyocho
所在地 東京都中央区日本橋人形町2-25-15
最寄り駅 東京メトロ日比谷線
人形町駅 徒歩4分

都営浅草線
人形町駅 徒歩4分

都営新宿線
浜町駅 徒歩5分

東京メトロ半蔵門線
水天宮前駅 徒歩6分

都営新宿線
馬喰横山駅 徒歩8分
階数 1階
面積 21.27坪(70.32㎡)
推奨席数 12席
物件タイプ フルセットアップオフィス
会議室数 6名掛け会議室×1室
テレカンブース数 1室
竣工年 1993年1月
特徴・設備 # 家具・什器付き # テレカンブース付き # 会議室付き # 男女別トイレ # 2路線利用可 # 最寄り駅から徒歩5分以内
募集条件
月額賃料@坪単価 553,020円(坪26,000円)
敷金 / 保証金 3,318,120円(6ヶ月)
償却
礼金
更新料 / 再契約料
入居可能日 2026年9月前後
契約期間 2年
原状回復有無
保証契約

※表示価格は税抜き価格です。

この物件を問い合わせる

物件のお問い合わせフォーム

オフィス物件を探す

キーワード
カテゴリー

Get In Touch!!

希望条件が決まっていなくても、オフィス移転のプロが要件定義からご一緒させていただきます。まずはお気軽にご相談くださいませ。

お電話でのお問い合わせはこちら

03-6858-3030

平日
9:00~18:00