Powered by
ホーム 中央区の居抜き・セットアップオフィスを探す 【敷金最大0】浜町駅徒歩1分!家具・什器完備、ナチュラルな雰囲気が魅力のフルセットアップオフィス

【敷金最大0】浜町駅徒歩1分!家具・什器完備、ナチュラルな雰囲気が魅力のフルセットアップオフィス

募集中
当社管理物件
エリア:中央区日本橋浜町
広さ:30〜60坪
席数:10〜19席
公開日:2026.03.01

物件のご紹介

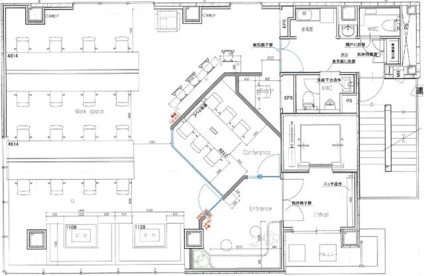
都営新宿線「浜町駅」から徒歩わずか1分の距離に位置する『日本橋浜町2丁目ビル』をご紹介します。浜町公園や隅田川からも近く、落ち着いた周辺環境が魅力の立地です。

ご紹介の区画は約35坪・16席想定のフルセットアップオフィス。2022年竣工のまだ新しさの残るビルで、2024年に内装造作付きセットアップ工事が完了しており、木目調の天井とフローリングに、大きな窓から緑を望むナチュラルな雰囲気が特徴です。

家具・什器を完備した執務スペースや会議スペースに加え、ゆったりとしたソファ席やカウンター席も備えており、シーンを選ばず活用できる、多彩なワークスペースが整っています。

敷金が「最大0ヶ月」と初期コストを大幅に抑えられるのも、資金繰りを重視されるスタートアップ・ベンチャー企業様にとっての大きなメリット。

人気が予想されますので、ぜひお早めにお問い合わせください。

おすすめポイント

  1. 敷金最大0ヶ月で初期コストを大幅に抑えられる
  2. 都営新宿線「浜町駅」徒歩1分の好立地
  3. 2022年竣工、2024年に内装造作付きセットアップ工事を実施済み
  4. 家具・什器付きですぐに業務を開始できるフルセットアップオフィス
  5. 木目調天井とフローリングが印象的なナチュラルテイストの空間デザイン
菅野 勇人

営業担当者

菅野 勇人

宅地建物取引士

セットアップオフィスから一般的なオフィスまで、多種多様なオフィスビルの魅力や特徴を熟知したオフィス物件マニア。

スタートアップ企業の移転支援経験が多く、そこで得た知見を活かし、お客様の理想のオフィス探しを全力でサポートいたします。

この物件を問い合わせる
物件概要
物件番号 fs-3516
物件名 日本橋浜町2丁目ビル
所在地 東京都中央区日本橋浜町2-43-4
最寄り駅 都営新宿線
浜町駅 徒歩1分

東京メトロ日比谷線
人形町駅 徒歩7分

都営浅草線
人形町駅 徒歩7分
階数 3階
面積 35.72坪(118.11㎡)
推奨席数 16席
物件タイプ フルセットアップオフィス
会議室数 6名掛け会議室×1室
テレカンブース数
竣工年 2022年3月
特徴・設備 # 敷金無し # 家具・什器付き # 会議室付き # 男女別トイレ # 2路線利用可 # 最寄り駅から徒歩5分以内
募集条件
月額賃料@坪単価 999,000円
敷金 / 保証金 最大0ヶ月
償却
礼金
更新料 / 再契約料
入居可能日 2026年5月中旬予定
契約期間 2年
原状回復有無
保証契約

※表示価格は税抜き価格です。

この物件を問い合わせる

物件のお問い合わせフォーム

オフィス物件を探す

キーワード
カテゴリー

Get In Touch!!

希望条件が決まっていなくても、オフィス移転のプロが要件定義からご一緒させていただきます。まずはお気軽にご相談くださいませ。

お電話でのお問い合わせはこちら

03-6858-3030

平日
9:00~18:00