Powered by
ホーム 中央区の居抜き・セットアップオフィスを探す 小伝馬町駅徒歩3分、東京駅へのアクセスも抜群のモダンセットアップオフィス

小伝馬町駅徒歩3分、東京駅へのアクセスも抜群のモダンセットアップオフィス

募集終了
当社貸主物件
仲介手数料無料
エリア:中央区日本橋本町
広さ:30〜60坪
席数:20〜39席
公開日:2024.11.26

物件のご紹介

歴史とモダンが融合する街、日本橋本町3丁目に位置する『ARC CUBE日本橋本町』は、モダンを感じさせるシックで落ち着いたデザインのセットアップオフィス。
日比谷線小伝馬町駅、銀座線三越前駅、さらにはJR日本橋駅が徒歩圏内で、東京駅や大手町エリアなど、ビジネス拠点へのアクセスも抜群の立地です。周辺には三越本店など老舗店舗が軒を連ねる伝統的な景観と、『コレド室町』をはじめとした再開発によって生まれた洗練されたビル群が共存し、創造力を刺激するスタートアップにとっても魅力的な環境となっています。

2020年にリニューアルされた『ARC CUBE日本橋本町』は、ビルのエントランスの壁面が和紙をモチーフとしたデザインとなっており、日本橋エリアの歴史・文化を感じることができる、落ち着いた和テイストの空間が魅力です。
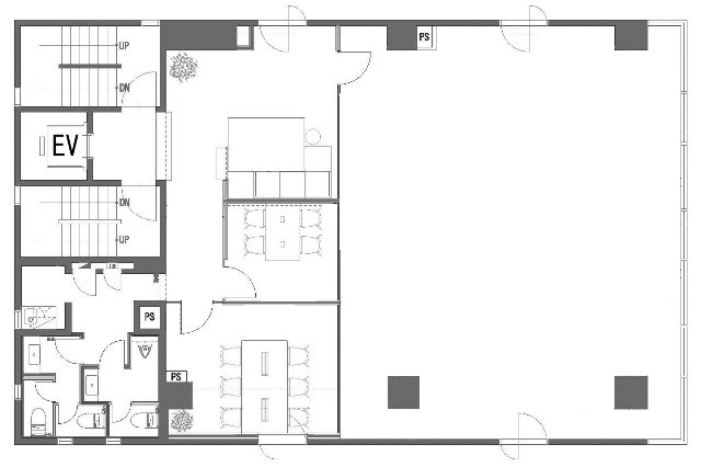
貸室内は開放的な天井高と採光豊かな窓面を備え、落ち着きがありながら、明るいワークスペースを実現。執務室には20〜25名収容可能で、会議室や受付も完備されており、移転後すぐに業務を開始できます。

さらに、現テナント様にて設置した会議室壁面のホワイトボード・会議室のガラスパーテーションに貼っている曇りガラス調のフィルムが残置相談可能。仲介手数料も不要で、必要なコストを抑えながら個の魅力的な環境で事業を展開することができます。
2025年4月上旬予定から入居可能となるこちらの物件、内覧についてご希望の企業様は、ぜひお気軽にご相談ください。

おすすめのポイント

  1. 当社貸主物件のため仲介手数料不要
  2. 東京駅や大手町への高い利便性を実現する周辺施設
  3. 落ち着きを備えた明るいワークスペース
  4. 受付・会議室付きでスムーズにビジネスを開始できる

菅野 勇人

営業担当者

菅野 勇人

宅地建物取引士

セットアップオフィスから一般的なオフィスまで、多種多様なオフィスビルの魅力や特徴を熟知したオフィス物件マニア。

スタートアップ企業の移転支援経験が多く、そこで得た知見を活かし、お客様の理想のオフィス探しを全力でサポートいたします。

この物件を問い合わせる
物件概要
物件番号 s-2032
物件名 ARC CUBE日本橋本町
所在地 東京都中央区日本橋本町3-9-7
最寄り駅 東京メトロ日比谷線
小伝馬町駅 徒歩3分

JR 新日本橋駅
徒歩3分

東京メトロ銀座線
三越前駅 徒歩7分
階数 3F
面積 51.86坪 (171.45m²)
推奨席数 24席
物件タイプ セットアップオフィス
会議室数 4名掛け会議室×1
6名掛け会議室×1
テレカンブース数
竣工年 1985年3月
特徴・設備 # 会議室付き # 男女別トイレ # リノベーション済み # 2路線利用可 # 最寄り駅から徒歩5分以内
募集条件
月額賃料@坪単価 1,140,920円(@22,000円)
敷金 / 保証金 最大0ヶ月
償却
礼金
更新料 / 再契約料
入居可能日 即日
契約期間 2年
原状回復有無
保証契約

※表示価格は税抜き価格です。

この物件を問い合わせる

物件のお問い合わせフォーム

オフィス物件を探す

キーワード
カテゴリー

Get In Touch!!

希望条件が決まっていなくても、オフィス移転のプロが要件定義からご一緒させていただきます。まずはお気軽にご相談くださいませ。

お電話でのお問い合わせはこちら

03-6858-3030

平日
9:00~18:00