Powered by
ホーム 中央区の居抜き・セットアップオフィスを探す 浜町駅徒歩4分と通勤に最適!入居も移転も便利なセットアップオフィス

浜町駅徒歩4分と通勤に最適!入居も移転も便利なセットアップオフィス

募集終了
当社貸主物件
仲介手数料無料
エリア:中央区日本橋久松町
広さ:30〜60坪
席数:10〜19席
公開日:2024.11.26

物件のご紹介


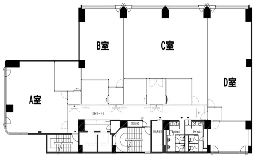
浜町駅徒歩4分、人形町駅徒歩5分の好立地で、周辺には複数路線が集まり都内主要エリアへのアクセスが抜群。周辺にはランチスポットや会食などで利用できる飲食店が充実しており、お店選びに困りません。オフィスは2020年にリニューアル済みで、エントランスは鏡を用いたモダンなデザインで上質高級感や印象を与えます。またこちらの物件は2024年8月に6階のフロアを4つに区分けし、各区画セットアップオフィスとして生まれ変わりました。水周りは共有部としてビル側で週5回清掃が入るため、常に清潔な状態が保たれています。清掃などの手間が発生せず、業務に集中できる環境を提供します。

D室には10名掛け会議室が設置されており、会議テーブルと椅子も備わっておりますので、初期費用を抑えての入居が可能です。即日利用可能な設備で、効率的なワークスタイルを実現できます。区画によってサイズが異なるため、お客様にあった区画がご提案可能です。是非お早めにご相談ください。

おすすめポイント

  1. 仲介手数料無料、 お客様の利用シーンに合った区画のご提案が可能なセットアップオフィス。
  2. 浜町駅徒歩4分、都内主要エリアへのアクセスが便利。
  3. 会議室はテーブルと椅子が設置済み。共有部の水回りはビル側で週5回清掃が入り、常に清潔。
  4. 2020年に大規模リニューアル工事済み。エントランスは鏡を用いたモダンなデザインで上質で高級感のあるデザイン。

菅野 勇人

営業担当者

菅野 勇人

宅地建物取引士

セットアップオフィスから一般的なオフィスまで、多種多様なオフィスビルの魅力や特徴を熟知したオフィス物件マニア。

スタートアップ企業の移転支援経験が多く、そこで得た知見を活かし、お客様の理想のオフィス探しを全力でサポートいたします。

この物件を問い合わせる
物件概要
物件番号 s-2036
物件名 FRAME日本橋
所在地 東京都中央区日本橋久松町9-9
最寄り駅 都営新宿線
浜町駅 徒歩4分

都営新宿線
馬喰横山駅 徒歩4分

東京メトロ日比谷線
人形町駅 徒歩5分
階数 6階D区画
面積 39.34坪 / 130.04m²
推奨席数 18席
物件タイプ セットアップオフィス
会議室数 10名掛け会議室×1
テレカンブース数
竣工年 1989年7月
特徴・設備 # 会議室付き # 男女別トイレ # 2路線利用可 # 最寄り駅から徒歩5分以内
募集条件
月額賃料@坪単価 983,500円(坪25,000円)
敷金 / 保証金 相談
償却
礼金
更新料 / 再契約料
入居可能日 募集終了
契約期間 2年
原状回復有無
保証契約

※表示価格は税抜き価格です。

この物件を問い合わせる

物件のお問い合わせフォーム

オフィス物件を探す

キーワード
カテゴリー

Get In Touch!!

希望条件が決まっていなくても、オフィス移転のプロが要件定義からご一緒させていただきます。まずはお気軽にご相談くださいませ。

お電話でのお問い合わせはこちら

03-6858-3030

平日
9:00~18:00